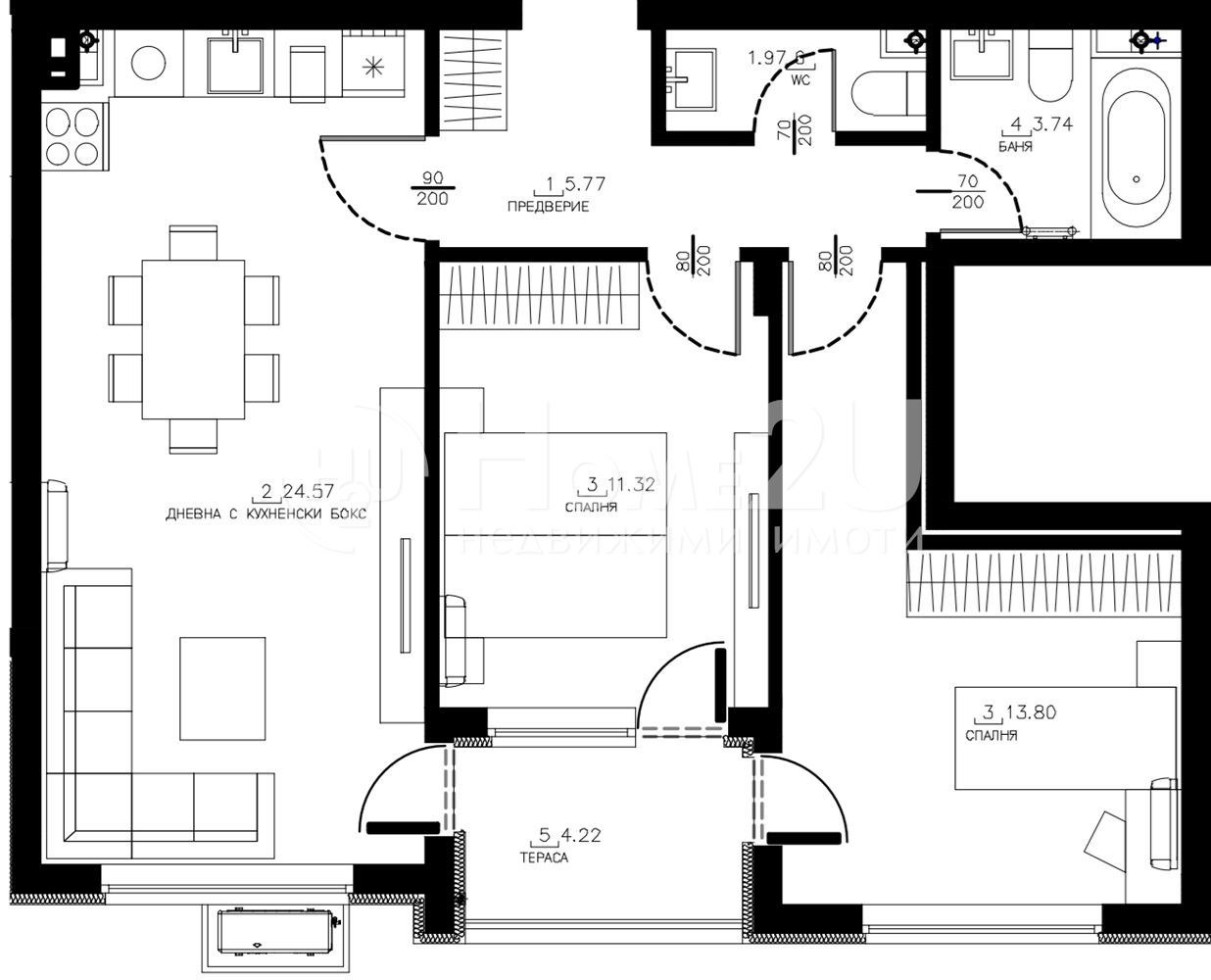
Home2U ви представя тристаен апартамент разположен на среден етаж във висококачествена сграда пред Акт15 и срок за Акт16 до края на 2025г. Апартаментът се намира в комплекс от 3 сгради с контрол на достъп, богато озеленяване, места за отдих, детска площадка и срок на завършване края на 2025г. Сградите са меджу 5 и 7 етажа, като ще оформят вътрешни пространства изолирани от улиците и градския шум, а високите етажи предоставят възможност за гледки. Апартамента със западно изложение, много светъл заради ъгловото си положение и е със следното функционално разпределение: входно антре, баня с тоалетна, тоалетна, спалня, втора спалня и дневна с общ голям балкон тип лоджия, за Ваше улеснение прилагаме схема на разпределение. Локацията на комплекса е най-комуникативната за района, а именно - на 50м от бъдещ магазин Лидл, 100м от държавна детска градина, 5 мин пеша от магазин Фантастико, Кауфланд, 5 мин пеша до бъдеща метростанция, 10 мин от парк НСА и бърза връзка към бул. Симеоновско шосе и Околовръстен път. Сградите ще бъдат захранени с ТЕЦ и изводи за климатици във всяко помещение и фиксирани позиции на фасадата. Има възможност за закупуване на допълнително гараж или склад. За повече информация или да запазите час за оглед, моля обадете се сега и цитирайте този код: 113946
Виж всички обяви в home2um.bazar.bg или тук
        
      
        
        
        
        
        
        
        
        
            
            
            
            
            
            
            
            






