Билдинг Бокс предлага за продажба прекрасен тристаен апартамент, с инвестиционен потенциал, в модерна новострояща се сграда в м-т Гърдова глава, кв. Бояна.
Апартаментът е на 2-ри етаж, с чиста площ 129.59 кв.м и обща площ 153.45 кв.м. Апартаменти със същото разпределение се предлагат и на горните етажи.
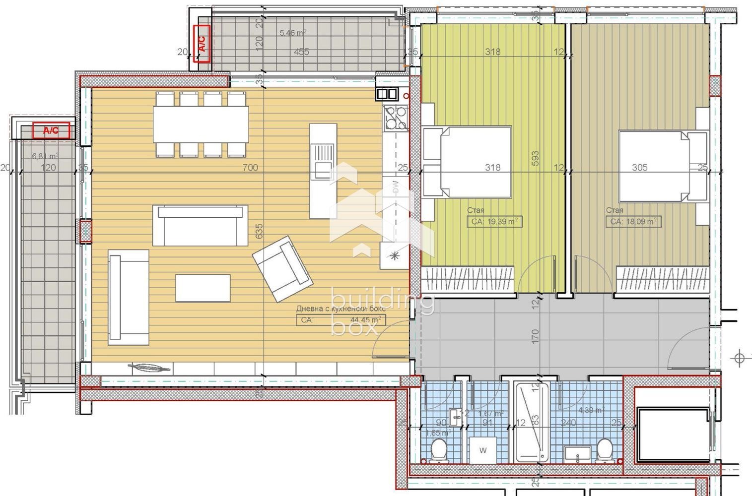
Изложение: юг-запад
Сградата е след АКТ 14 чл. 181, АКТ 16 се очаква до края на 2025г.
Отоплението е на газ, с изградени изводи за радиатори и климатици. Инвеститорът предлага изграждане на подово отопление на преференциални цени.
Имотът включва:
Всекидневна - 44.45 кв.м
Спалня 1 - 18.09 кв.м
Спалня 2 - 19.39 кв.м
Баня с тоалетна - 4.39 кв.м
Тоалетна - 1.67 кв.м
Мокро помещение - 1.65 кв.м
Южна лоджия - 6.81 кв.м
Западна лоджия - 5.46 кв.м
Склад в сутерена - 4.16 кв.м светла площ
Антре - 9.10 кв.м
Паркиране: към имота може да се закупят паркоместа и гаражи.
ПРЕДИМСТВА НА ПРОЕКТА:
Сградата се изпълнява с водоплътен бетон клас С 25/30 като допълнителна гаранция за високоякостните характеристики на стоманобетонната конструкция. Този бетон е над изискванията по проект и с него се строят много високи сгради. Зидарията се изпълнява с тухли ВИНЕРБЕРГЕР .
Сградата ще е с изцяло окачена вентилеруема фасада, ще се използват материали като: стъклокерамика, HPL и еталбонд, по разработен дизайнерски проект, което ще придаде стил и уникалност на сградата. Дограмата ще е от композитен материал 86 мм, модел GENEO на REHAU с троен стъклопакет, цвят антрацит (тъмносив).
Асансьорите ще са 8 местни на световния производител ОТИС.
Входните врати на апартаментите ще са поръчкови, метални, блиндирани и с топлоизолация.
За локацията:
Жилищната сграда се намира в най-хубавата част на местност Гърдова глава, на 200 метра от околовръстния път и бул. Цар Борис , в околностите има училище, детска градина, хипермаркети Фантастико и Lidl.
Местност Гърдова глава е част от зелената яка на гр.София. Районът е близо до основни булеварди и градски транспорт и едновременно с това е тихо и спокойно място с чист въздух. През пролетта въздухът е с аромат на цветя, а през цялата година ваши съседи ще са борове с катерици и кълвачи.
Билдинг Бокс предоставя безплатна консултация и съдействие при финансиране на избрания от Вас имот.
Оферта 22493
Виж всички обяви в buildingbox.bazar.bg или тук
        
       
         
         
         
         
         
         
         
             
             
             
             
             
             
            






