Регент Хоумс предлага за продажба партерен апартамент в кв. Драгалевци, ул. Еловица.
Жилището се намира в спокойна част на квартала, с възможност за паркиране. Сградата е оградена и с контролиран достъп, построена през 2008 г.
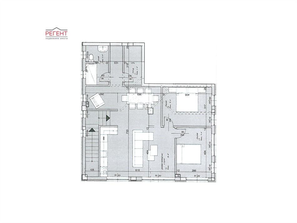
Апартаментът е с обща площ от 158 кв.м (включително общите части) на две нива ,и се предлага на шпакловка и замазка . Има възможност за ползване на вътрешен двор, което създава усещане за живот в апартамент с удобствата на къща.
Имотът е подходящ както за лично ползване, така и за инвестиция.
За допълнителна информация и организиране на огледи:
0884 119 159 Цветомир Йовчев







