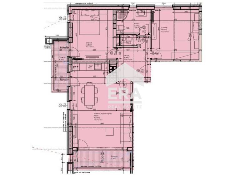
ЕРА Вива продава тристаен апартамент в нова сграда пред Акт 16, разположена в непосредствена близост до УМБАЛ Св. Марина (Терапията), гр. Варна. Имотът е със застроена площ от 98.88 кв.м. /110 кв.м с общите части/ и е разположен на седми от общо десет етажа. Състои се от входно антре /8 кв.м./, слънчева дневна с кухненски бокс и трапезария /30 кв.м./, с големи прозорци и излаз към тераса /6.1 кв.м./, две спални /15 кв.м. и 13.3 кв.м./, едната с достъп до втора тераса /4.3 кв.м./, баня с тоалетна /5 кв.м./ и килер /1.2 кв.м./. Изложенията са юг /дневна/, запад /трапезария, кухня и едната спалня/ и северозапад /втората спалня/. Жилището предлага впечатляваща панорама към града, морето и нос Галата. Степен на завършеност по БДС - на шпакловка и замазка, с поставена ПВЦ дограма и блиндирана входна врата.
Модерна сграда, изпълнена по най-високите стандарти, с луксозни общи части, асансьор и контрол на достъпа. Акт 16 се очаква през лятото на 2025 г. Има възможност за закупуване на открито паркомясто.
Отлична локация. В близост до квартал Левски, детски градини, училища, Техническия университет, хипермаркет Лидъл, магазини и спирки на градски транспорт.
Оферта 1009489







