ИЛДИНГ БОКС предлага за продажба тристаен апартамент в новострояща се жилищна сграда
ЛОКАЦИЯ : Жилищната сграда се намира в кв Владиславово. Локация с бърз достъп до главен булевард, в квартал с модерни нови жилища. Жилищната сграда се намира в близост до различни обществени имоти, търговски обекти, медицински центрове. Отлична локация. Лесен достъп до градски транспорт.
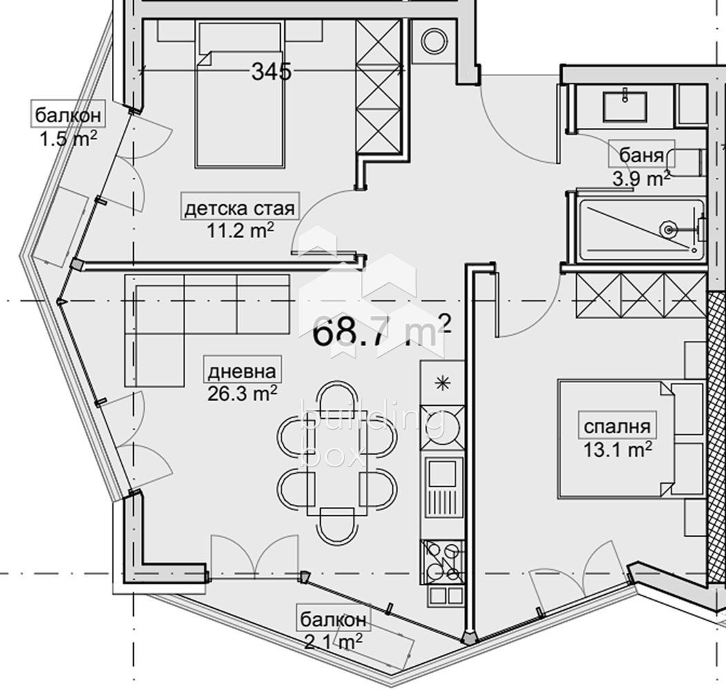
РАЗПРЕДЕЛЕНИЕ : Просторен и светъл тристаен апартамент, който предлага отлична среда за семейства, търсещи допълнително пространство. Жилището включва две отделни спални, голяма дневна с кухненска част и трапезария, както и баня с тоалетна. Отличава се с много добра осветеност и оптимално разпределение, създаващо усещане за свобода и комфорт.
ЕТАЖНОСТ : Етаж 5 от 10
ИЗЛОЖЕНИЕ : Юг/Запад
ОТОПЛЕНИЕ : Електричество
ПАРКИРАНЕ : Налични подземни паркоместа, гаражи, както и външни паркоместа, които могат да бъдат закупени допълнително.
ЕТАП НА СТРОИТЕЛСТВО : пред разрешение за строеж
СГРАДА : Сградата е проектирана на 10 жилищни етажа, с общо 114 апартамента и 60 студиа. Апартаментите разполагат с функционални разпределения с всекидневни и спални с голяма площ, максимална светлина и простор. Качествено строителство. Смарт окабеляване. Тих асансьор. Енергийна ефективност. Видео наблюдение.
ИНВЕСТИТОР : Инвеститор с голямо портфолио завършени и успешно въведени в експлоатация сгради.
Билдинг Бокс предоставя безплатна консултация и съдействие при финансиране на избрания от Вас имот.
Оферта 23152







