Тристаен апартамент с две просторни спални в луксозна новострояща се сграда кв. Христо Смирненски, ул. Рая
Представям ви функционален и светъл тристаен апартамент в елегантна и съвременно проектирана сграда, разположена на тиха, озеленена улица в квартал Христо Смирненски район с отлична инфраструктура и бърз достъп до основни булеварди, училища, детски градини, градски транспорт и търговски обекти.
🧱 Предимства на сградата:
Модерен дизайн с висок клас материали и вентилируема фасада с HPL панели
Качествено строителство от утвърден изпълнител с множество завършени обекти
Минимални общи части
Контролиран достъп, възможност за видеонаблюдение.
Богато озеленяване около сградата и спокойна жилищна атмосфера
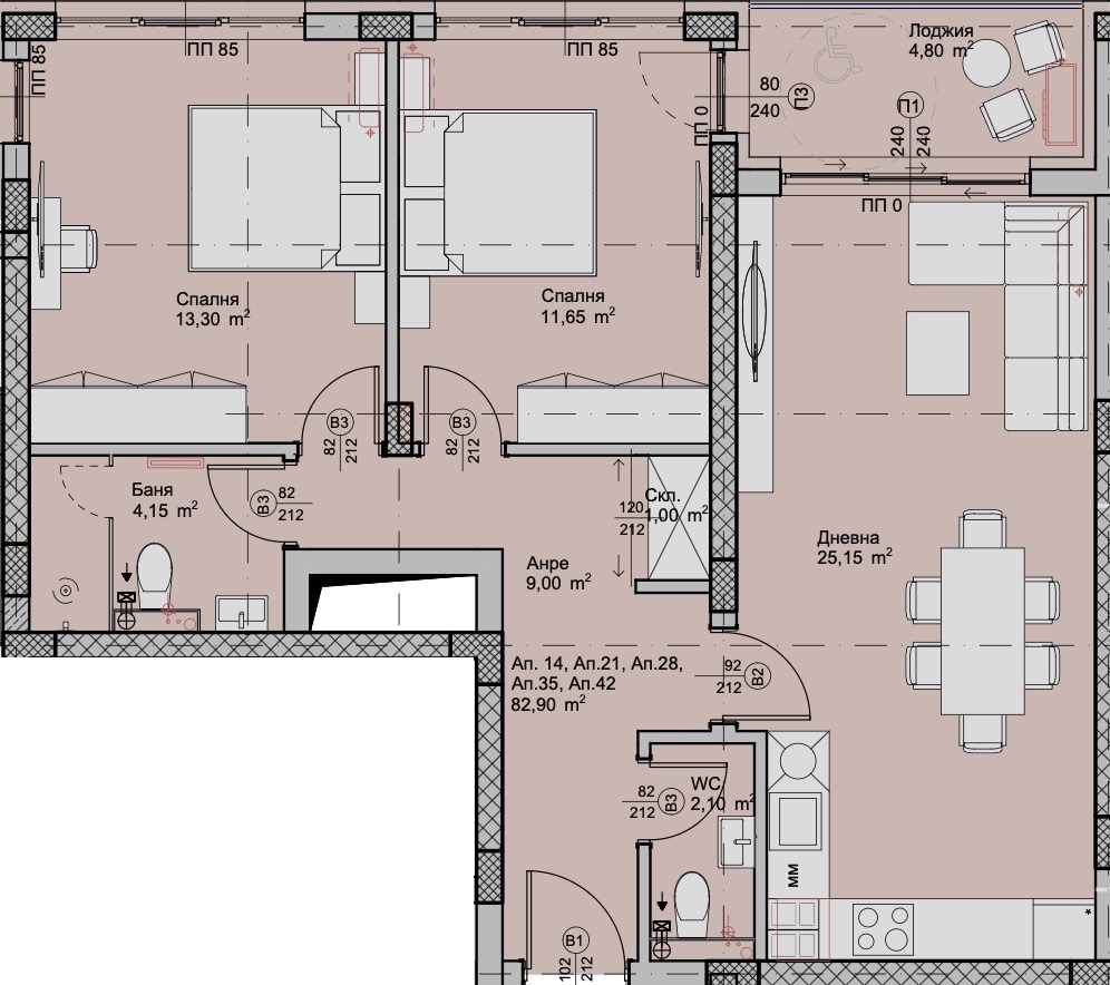
🏠 Разпределение на апартамента : входно антре с ниша с вграден гардероб; хол с обособен кухненски бокс ; две отделни спални ; балкон общ за трите помещения и две мокри помещения.
Изложение с отлична естествена осветеност през целия ден.
Жилището е изключително подходящо за семейства, търсещи простор, уют и високо качество на живот в утвърден район.
🚗 Допълнителни възможности: Подземни и надземни гаражи и паркоместа.
📅 Срок за въвеждане в експлоатация: 2028 г.
🏦 Имотът е подходящ за банково финансиране съдействие при нужда, без допълнителни такси
📞 За повече информация и организиране на оглед: Петър Накаленов Консултант с 12 години опит в сферата на новото строителство
📱 Телефон: 0897 077 363
📧 Email: [email protected]ом
Виж всички обяви в hhproperties.bazar.bg или тук
        
      
        
        
        
        
        
        
            
            
            
            
            
            






