✨ Тристаен апартамент в новострояща се сграда на ул. Рая , кв. Христо Смирненски комфорт, функционалност и уют в подбрана среда
🏡 Сградата съчетава високо качество на строителство, модерна визия и практични решения, проектирани с мисъл за съвременния начин на живот. Локацията на тиха улица с лесен достъп до градски транспорт, училища, паркове и магазини я прави особено подходяща за семейства.
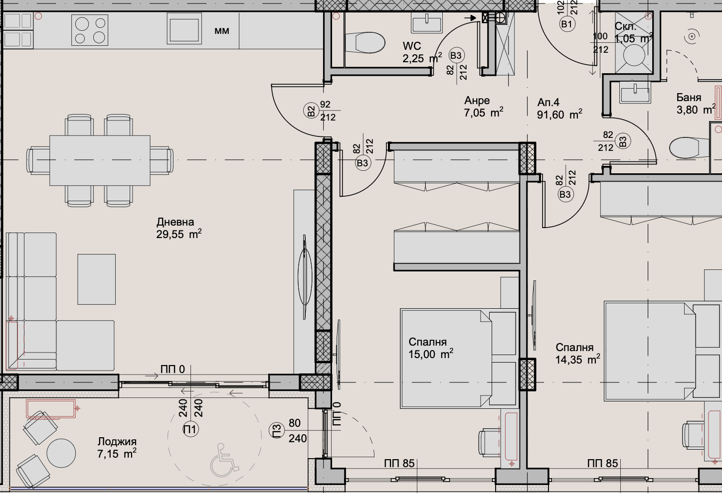
Апартаментът е с южно изложение и отлично вътрешно разпределение, осигуряващо светлина, простор и удобство за всяко домакинство:
- входно антре
- просторна дневна с кухненски бокс
- две самостоятелни спални
- баня с тоалетна
- тоалетна отделно
- просторна тераса
- складово помещение
📐 Чиста площ: 91,6 кв.м
📏 Обща площ: 107,55 кв.м
🌿 Спокойна жилищна среда с озеленени пространства и възможност за изграждане на дълготраен, качествен начин на живот в една от най-предпочитаните части на града.
📅 Срок на завършване: 36 месеца
🚗 Възможност за закупуване на паркоместа и гаражи
🏦 Подходящ за банково финансиране съдействие без допълнително заплащане
✅ Директна продажба от инвеститор без комисионна
Оферта 6579
Виж всички обяви в hhproperties.bazar.bg или тук







