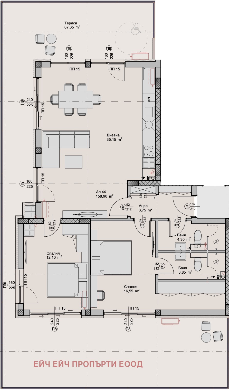
✨ Невероятен тристаен апартамент на последен етаж с гигантска тераса от 68 кв.м! За тези, които търсят не просто жилище, а жизнено пространство, което отразява стил, елегантност и съвършенство. Апартаментът е създаден за ценители, които ценят простора, комфорта и несравнимата гледка.
🏡 Апартаментът предлага:
🛋 Просторна дневна с кухненски бокс отвореното пространство създава невероятно усещане за свобода, идеално за стилни вечери и интимни събирания. Големите прозорци не само осветяват, но и обогатяват с уникални гледки към града и околността.
🛏 Две спални всяка от които предлага максимален комфорт и спокойствие, със стратегически подредени пространства, които осигуряват уединение и релаксация.
🛁 Луксозна баня с тоалетна висококачествени довършителни работи, които създават усещане за премиум комфорт и стил.
🌞 Гигантска тераса от 68 кв.м този апартамент не е само жилище, а начин на живот! Терасата е перфектното място за вечерни коктейли, обедни барбекюта, или просто наслаждаване на панорамната гледка и слънцето, което радва през целия ден.
🌟 НАЙ-ВИСОК КЛАС СТРОИТЕЛСТВО:
🧱 Тухла Винербергер гаранция за топло- и шумоизолация на най-високо ниво.
🪟 7-камерна дограма с троен стъклопакет за максимална енергийна ефективност и неустоимо спокойствие.
🌿 Изолация с каменна вата защитете не само себе си, но и вашите разходи за енергия, с издръжливи и устойчиви решения.
🏗 Окачена фасада съвършена естетика, която съчетава практичност и визия.
📍 Локация: В сърцето на кв. Христо Смирненски, с лесен достъп до парк, училища, болници и магазини. Пространство, което се намира точно там, където трябва да бъде.
📅 Срок на завършване: 2028 г.
💰 Гъвкави условия на плащане направете този апартамент свой по начина, който ви устройва.
🚗 Възможност за закупуване на паркоместа и гаражи защото най-доброто изживяване е без излишни притеснения.
🏦 Подходящ за покупка с ипотечен кредит съдействие без допълнителни такси
✅ Директна продажба от инвеститор без комисионна!Имот 6558
Виж всички обяви в hhproperties.bazar.bg или тук







