Пентхаус с АКТ 16 3-стаен апартамент + целия покрив на малка, нискоетажна луксозна сградата, на тиха локация, с възможност за множество преустройства на пространствата. Сградата е с асансьор влизащ директно в апартамента. Жилището е с големи веранди от трите страни и гледки в четирите посоки. Единственият възможен имот, създаващ усещане за къща в интензивна градска среда, на добра цена.
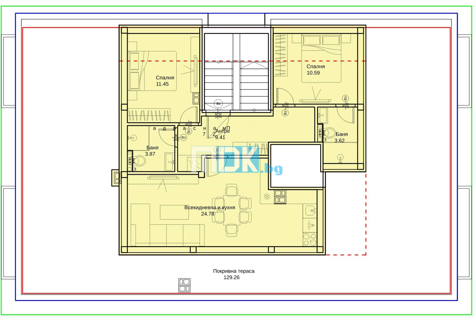
Жилището разполага с 2 спални, 2 бани, перално помещение, просторна дневна и 129 кв. тераси с перголи, с 4 изложения. Има запазено партерно паркомясто с отделна цена. Сградата е с един вход в самостоятелен парцел, с асансьор и луксозни общи части. Апартаментът е на шпакловка и замазка.
Може да бъде завършен до ключ.
АКТ 16!
Без комисионна! Съдействие за банково кредитиране! Коментари в цената след оглед!
В близост са всички нужни комуникации в райпна учебни заведения, магазини, пазар, парк, спортни съоръжения и др.
Заповядайте на оглед!
Апартамент 93.27 кв.м.
Тераси 129,26 кв.м.
Паркомясто с отделна цена
Идеална част от собствен двор в цената.







