Сградата е разположена в една от най-преспективния район на гр. Варна. Комбинира модерна архитектура, качествено строителство и нескриваема гледки към Варненското езеро и града.
Имотът разполага със следните параметри:
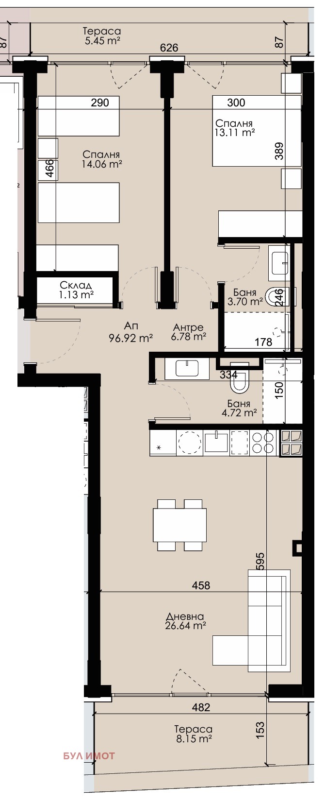
Просторен дневен тракт над 26 кв.м. с излаз на тераса, две големи спални с озлаз на обща тераса, като едната е със самостоятелна баня и тоалет, килер, входно антре, баня и тоалет.
Жилищен комплекс LIBRA е стратегически разположен в новоразвиващ се район на Варна, който ще зарадва своите жители с разнообразие от удобства и добри транспортни връзки. Перспективният квартал предлага баланс между динамичния градски живот и спокойствието на природата - предлагайки зелени площи и детски площадки за отдих и игри, което осигурява всички необходими удобства за комфортно и съвременно ежедневие.
За повече информация и огледи: Женя Николова - 0887878833
Виж всички обяви в bulimot.bazar.bg или тук
        
       
         
         
         
         
         
         
             
             
             
             
             
            


