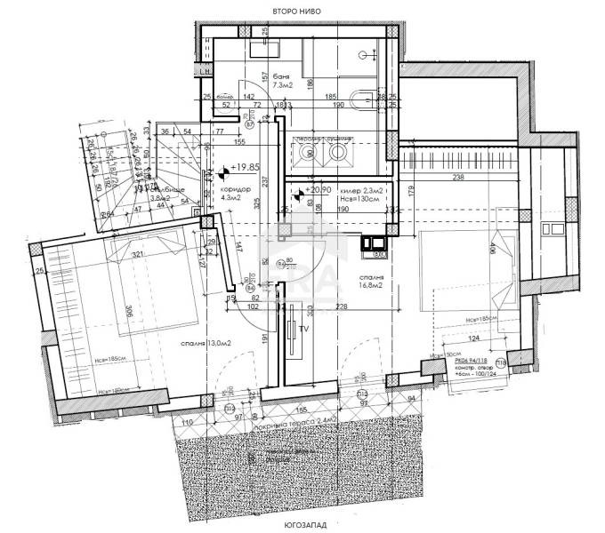
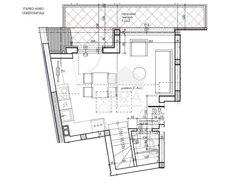
ЕРА Варна Тренд предлага за продажба тристаен апартамент тип мезонет със застроена площ 100,17 кв.м (123,38 кв.м с общите части), разположен на две нива - на седми и осми етажи. Първо ниво се състои от дневна с кухненски бокс (21,4 кв.м) и излаз на широка покривна тераса (9,2 кв.м), тоалетна (2,1 кв.м). Вътрешно стълбище води до второ ниво, разпределено като две спални (13 кв.м и 16,8 кв.м), по-голямата със собствен килер (2,3 кв.м), обща за двете стаи покривна тераса (2,4 кв.м), коридор (4,3 кв.м) и просторна баня с тоалетна (7,3 кв.м). Изложението е югозапад (спални) - северозапад (дневна). Открива се красива панорама към морето, нос Галата и Варненското езеро.
Жилището се продава необзаведено, завършено до степен БДС, с поставена ПВЦ дограма с К стъкло. Отоплението с електричество.
Тристайният мезонет се намира в район Погреби, в близост до ул. Кракра, в осеметажна тухлена сграда с асансьор, на етап на строителство издаден Акт 14. Разрешение за ползване на сградата (Акт 16) се очаква през месец декември 2025 г. В сградата се продават още два тристайни апартамента на 5-и и на 6-и етажи. Има възможност за допълнително закупуване на подземно паркомясто на цена 30 000 евро, като достъпът е с асансьорна рампа.
Оферта 0221525







