Сградата:
- Съвременно тухлено строителство от доказан строител
- Модерна архитектура и оригинални фасадни решения
- Луксозно завършени общи части
- Статут на апартамент идеален за банково кредитиране
- Възможност за покупка на гараж или паркомясто
Локация:
На пешеходно разстояние от супермаркет, пазар, училище, детска градина, спирки на градския транспорт и бърз достъп до основни пътни артерии. Районът е с изградена инфраструктура и предлага удобства за семейства.
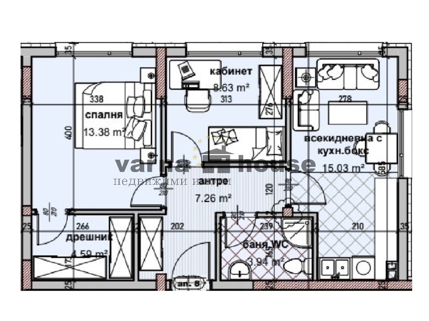
Разпределение на имота:
- Просторно входно антре
- Светъл дневен тракт с кухненска част
- Две отделни спални, едната с дрешник (5 кв.м)
- Баня с тоалет
- Балкон
Жилището се издава по БДС.
Гъвкави условия и възможност за разсрочено плащане или финансиране чрез банков кредит.
За огледи и допълнителна информация, моля позвънете на посочения телефон.
Виж всички обяви в varnahouse2012.bazar.bg или тук
        
       
         
         
         
             
             
            






