Агенция Ронева представя тристаен апартамент в бутикова сграда с малък брой апартаменти в кв. Бриз.
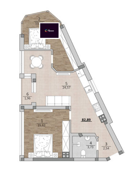
Апартаментът се намира на първи жилищен етаж над партер и се състои от антре, всекидневна с кухненски бокс, две светли спални, баня с тоалет в едно и тераса. Имотът е просторен и светъл, с разчупени форми, което предполага смели дизайнерски решения и обзавеждане.
Съвременната архитектура, панорамните прозорци дават усещане за лекота и уют.
В сградата могат да бъдат закупени двустайни и тристайни апартаменти както и паркоместа.
Местоположението на сградата е много атрактивно, в близост до всичко необходимо и е удачен избор за хора с активен начин на живот. Локацията позволява бърз достъп до центъра на града, Морската градина, плажната алея, а също така и курортните комплекси в близост до Варна.
При избор на имот винаги може да разчитате на безплатна консултация от специалистите от РОНЕВА ООД. Предлагаме също така и съдействие за отпускане на банков кредит и помощ при сключване на сделки и подготвяне на нужната документация.
ОФЕРТА 80289
www.roneva.bg







