BULGARIA SOTHEBY’S INTERNATIONAL REALTY представя на Вашето внимание нова луксозна сграда разположена на емблематичната улица Пиротска. Тази изключителна сграда предлага съвременен начин на живот, съчетаващ елегантност, комфорт и изтънченост. Със своето уникално архитектурно оформление и висококачествени материали, това ще бъде идеалният избор за всеки, който търси дом, отговарящ на най-високите стандарти. Насладете се на модерни апартаменти с просторни интериори, стилен дизайн и панорамни гледки към столицата.
ХАРАКТЕРИСТИКИ НА ИМОТА:
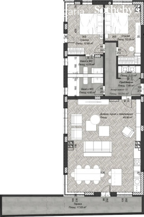
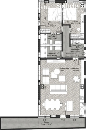
Площ: 130.94 m²
Обща площ:154.39 m²
Обща площ с покривна тераса: 243.15 m²
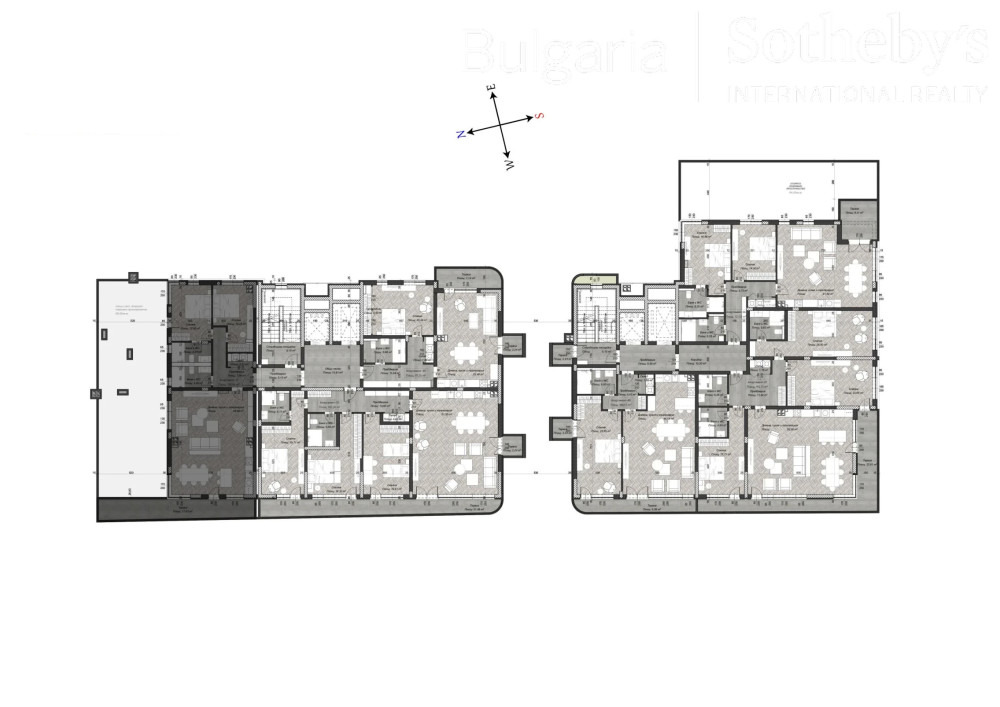
Разпределение: дневна с трапезария и кухнески бокс, две спални, две бани, тераса, склад.
ПРЕДИМСТВА НА ИМОТА:
Отлична локация;
Функционални и светли жилища;
Луксозни общи части;
Озеленена покривна градина;
Сигурност – контрол на достъп;
ТЕХНИЧЕСКИ ХАРАКТЕРИСТИКИ НА ИМОТА:
Фасадата е с изчистени форми. Използвани са фасадни декоративни елементи, които подчертават обемите;
Конструкцията на сградата е монолитна стоманобетонова с външни зидов;
Терасите са предвидени с ажурни и плътни парапети с височина от мин. Заложени са необходимите топло и хидроизолации съобразно действащите нормативи.
Създаването на общо пространство в градска среда е предизвикателство при осигуряването му по функционален начин, което да донесе допълнително за уютна обстановка и качеството на живот;
Предвидена е богато озеленена общодостъпна покривна тераса в акцентната зона на сградата;
ЛОКАЦИЯ НА ИМОТА:
Сградата се намира на много комуникативно място - достъпна от юг от ул. „Пиротска“ и от запад бул „инж. Иван Иванов“. В непосредствена близост е Цум както и автобусни спирки и метростанция. От ул. „Пиротска“ е предвидени вход/изход към подземния паркинг посредством двулентова рампа. От бул. „инж. Иван Иванов“ са предвидени още два вход-изхода за автомобили, които осъществяват достъп до паркинга на партерното ниво и този на първия надземен етаж.
Апартаменти:
• 2 250 € / кв.м → за 3-ти и 4-ти етаж
• 2 370 € / кв.м → за 5-ти до 10-ти етаж
• 2 490 € / кв.м → за 11-ти до 13-ти етаж
• 2 990 € / кв.м → за 14-ти етаж
Паркоместа: от 33 000 €
Гаражи не се предлагат.
СХЕМА НА ПЛАЩАНЕ
30% Предварителен договор
20% Кота етаж
20% Акт 14
20% Акт 15
10% Акт 16
Стоп-депозит:
• 5000 лв. за апартамент
• 2000 лв. з?







