Най- актуалните Имоти са samhome.bg Реф. Номер: 32177
Отлична локация в непосредствена близост до: бул. Цар Освободител и магазин Джъмбо.
Автобусна спирка: 100 метра
Международно летище: 2 километра.
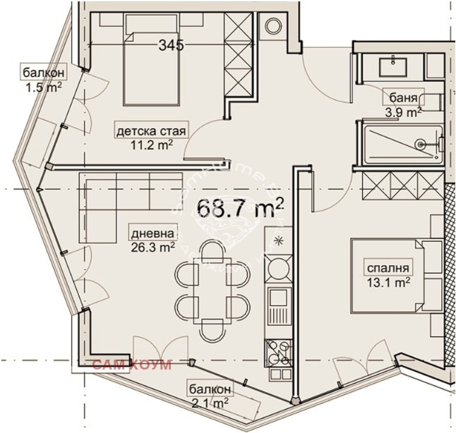
Описание на имота:Дневен тракт, спалня, входно антре, баня с тоалет.
Чиста Жилищна Площ: 23кв.м.
Състояние: Завършен съгласно БДС.
Сграда: Монолитно тухлено строителство сграда със статут на апарт хотел.
Предимства: Отлична локация, до главен булевард.
Недостатъци: Няма.
Моля цитирайте реф. номер когато се обадите.
Ние ще Ви обърнем внимание и ще вникнем в детайлите на Вашето търсене заповядайте на среща с брокер в Нашият уютен офис. Комплимент за всеки закупен имот Нашите клиенти получават застраховка имущество за една година!
САМ ХОУМ е агенция създадена от брокери с над 15 годишен опит в сферата на недвижимите имоти, нашата цел е да Ви предоставим качествено обслужване, на което ние бихме се радвали, ако сме Ваши клиенти!
Виж всички обяви в samhome.bazar.bg или тук







