Агенция за недвижими имоти Seven Hills предлага за продажба тристаен апартамент с площ от 119.10 кв.м , от които застроена площ 95.66 кв.м., в района на Парк Отдих и култура.
В близост до Гребна база, две големи пътни артерии на града, чисто нов и модерен тенис корт, както и станция за зареждане не електромобили.
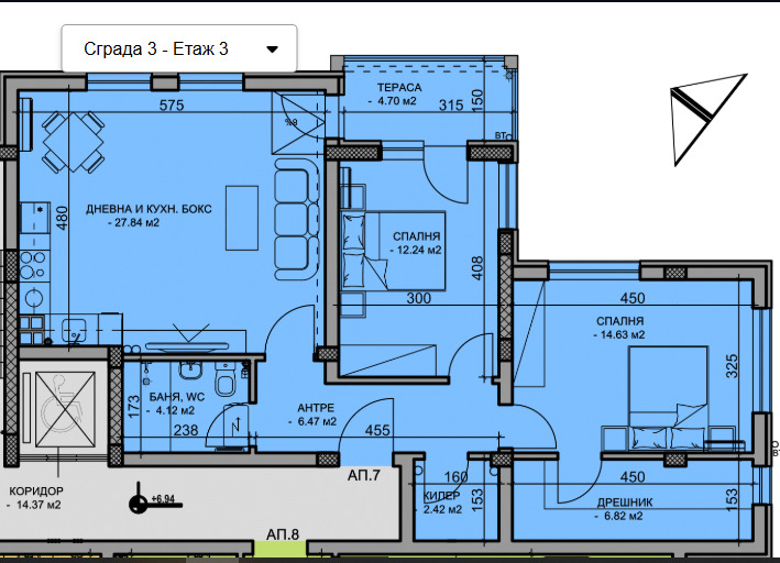
Апартаментът е единствен на етаж и има следното функционално разпределение : входно антре, дневна с кухненски бокс (почти 28кв.м) , две спални (12.5 кв.м и 21 кв.м) с дрешник, баня с тоалетна, килер и тераса. Жилището е разположено на втори етаж от общо три.
Асансьорът е Schindler с осигурен достъп за хора с увреждания. Има четири спирки - от подземните паркоместа до последния трети етаж, за да подсигури комфорта на собствениците.
Предлагаме Ви уникална бутикова сграда с визия, стил, уют и качество без аналог на пазара.
Затворен комплекс с контролиран достъп , видеонаблюдение 24 часа в денонощието и минимални такси поддръжка. Комплексът се състои от 3 малки сгради с по 7 апартамента.
Осигурено паркиране над 100 %.
Модерният и отличаващ се с дизайн, повлиян от бързо развиващият се New York, включва типичния rooftop, който всеки двустаен апартамент получава безплатно - около 25 кв.м. Покривните тераси ще бъдат обособени с вечно зелена растителност и изградени слънцезащитни съоръжения.
Сградите са проектирани по всички световни стандарти, включващи енергийна ефективност и висока земетръсна устойчивост.
Предимствата на тази сграда са много и с удоволствие ще ви запознаем с тях :
Фасада : Клинкер тухли от най-висок клас, осигуряващи висока енергоефективност, шумо и влаго изолация ;
Топлоизолация - 12 см каменна изолация ; Дограма - 5 камерна Кьомерлинг с подсилен шумоизолационен стъклопакет, ниско емисионно КА стъкло 4 сезона. ;
Шумоизолация на всички стени между апартаментите, на пода и тавана ; Ковано Желязо по балконите, които са с първокачествен мразоустойчив гранитогрес ;
Общи части - настилки : гранит, парапети : ковано желязо ; Вертикална планировка : вечно зелена растителност, поливна система с капково напояване ; Закрит фитнес
За повече информация и за оглед се обадете на посочения телефонен номер.
Виж всички обяви в sevenhills.bazar.bg или тук







