Агенция Ронева предлага тристаен апартамент, който е част от нов проект в кв. Владиславово - един от най-обновените и развиващи се райони на Варна.
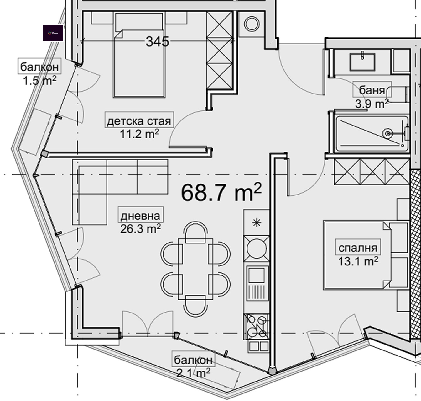
Апартаментът е разположен на четвърти жилищен етаж и състои от антре, дневна с кухненски бокс и прилежаща тераса, две спални, едната от които с тераса, баня с тоалет в едно. Жилището е функционално, помещенията са светли без скосове.
В сградата има налични едностайни, двустайни и тристайни апартаменти както и подземни паркоместа.
Проектът съчетава модерна визия, комфорт и спокойствие. Жилищата се предлагат по БДС като за изпълнението на сградата ще бъдат използвани най-съвременни способи и висококачествени материали, съгласно последните изисквания и нормативи за устойчивост, топлоизолация и качество на живеене.
Инвеститорът е предвидил три схеми на плащане в зависимост от индивидуалните възможности на клиентите.
Заложени са отсъпки от ценатата в размер на 3% и 5% спрямо избраната схема.
За удобство на жителите в кв. Владислав Варненчик има поликлиника, училища, детски градини, парк, различни по вид магазини и големи търговски вериги. Кварталът се обслужва от множество автобусни линии, което осигурява достъп до всички части на града.
При избор на имот винаги може да разчитате на безплатна консултация от специалистите от РОНЕВА ООД. Предлагаме също така и съдействие за отпускане на банков кредит и помощ при сключване на сделки и подготвяне на нужната документация.
ОФЕРТА 80286
www.roneva.bg







