ДИРЕКТНО ОТ ИНВЕСТИТОР! 'Ви Ем Инвест' ви представя тристаен апартамент в най-новия си проект - сграда 'СВЕТЛА'! Намира се в жк. 'Модерно предградие' в близост до бул. Сливница и НГДЕК. Проектирана е да осигури комфорт, сигурност и уют в съвременна жилищна сграда. Разположена в спокоен и добре уреден район на София, с бърз достъп до основни градски удобства, включително хипермаркети, училища, детски градини и бързи транспортни връзки с останалите части на града.
Проектът включва общо 25 апартамента, всеки от които е проектиран с мисъл за удобството на бъдещите си обитатели. Просторните и светли помещения с функционални разпределения създават усещане за простор и позволяват оптимално използване на пространството.
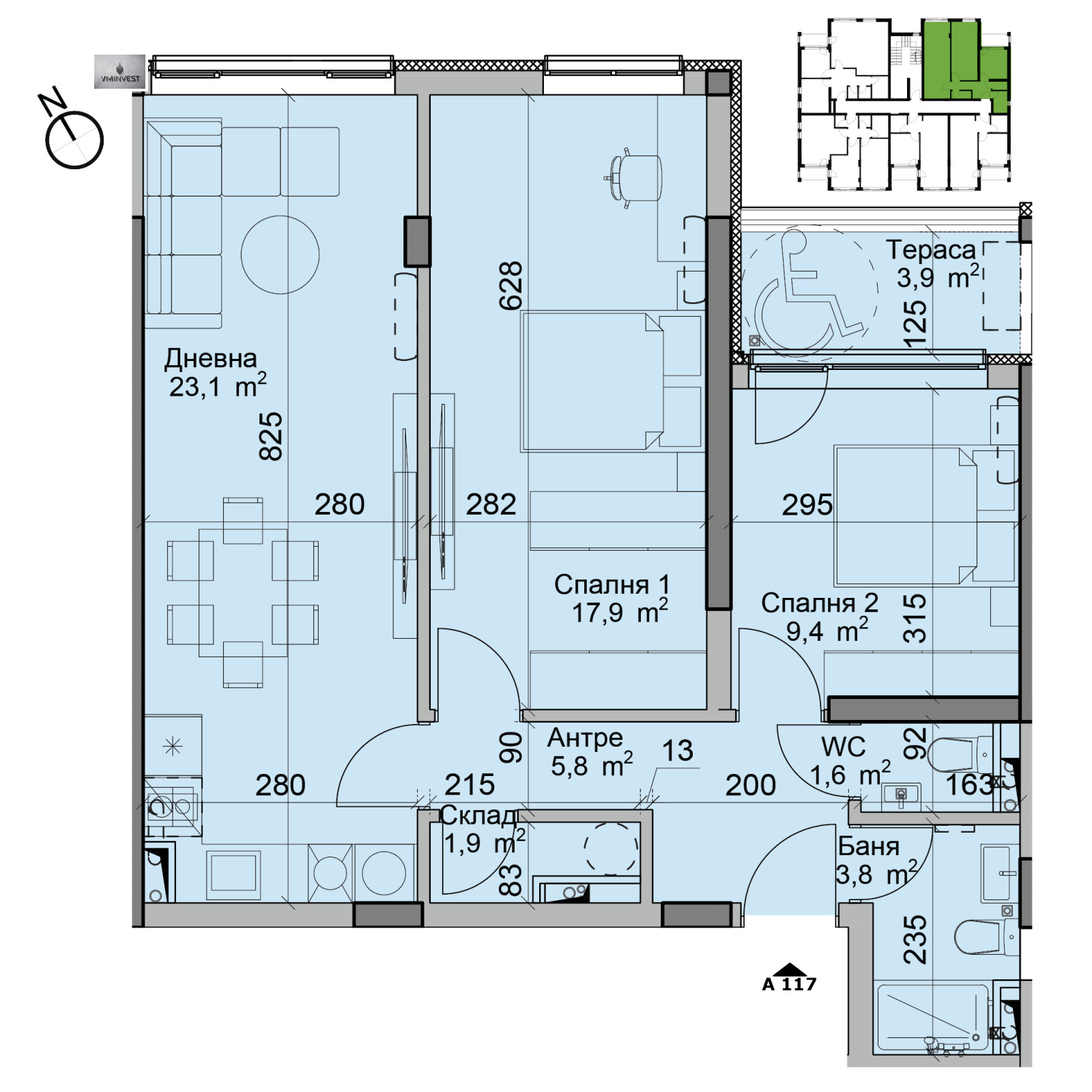
Апартаментът /Ап. 117/ е с площ от 94,21 кв.м. и е на четвърти етаж.
Разпределение: входно антре /5,80 кв.м./, дневна с кухненски бокс /23,10 кв.м./, спалня /17,90 кв.м./, втора спалня /9,40 кв.м./, баня с тоалетна /3,80 кв.м./, тоалетна /1,60 кв.м./, складово помещение /1,90 кв.м./ и тераса /3,90 кв.м./.
Има възможност за закупуване на паркоместа и гаражи на цени от 16 000 евро.
Сградата разполага също с общо 15 паркоместа и 8 гаража, осигурявайки удобство за собствениците на автомобили.
Проектът е съобразен със съвременните изисквания за енергийна ефективност и екологична устойчивост. Жителите ще се насладят на уютна жилищна среда с ниски енергийни разходи и минимален отпечатък върху околната среда.
Този проект е идеалният избор за хора, които търсят спокойствие, сигурност и уют, без да се отказват от удобствата на големия град.
Компанията ни може да ви съдейства за кредитно посредничество, ако сте предвидили плащания чрез ипотечен и/или потребителски кредит.
Като наши клиенти имате възможността да се възползвате от безплатно кредитно консултиране. Ще получите най-добрите оферти, съобразени с вашия личен профил и предпочитания, при преференциални условия.
Научете повече на: www.vminvest.bg







