Comfort Properties Group има удоволствието да Ви представи просторен Тристаен Апартамент в нова жилищна сграда в близост до един от основните булеварди на София Цариградско шосе и на няколко минути от Орлов мост в кв. Полигона
Характеристика на Имота:
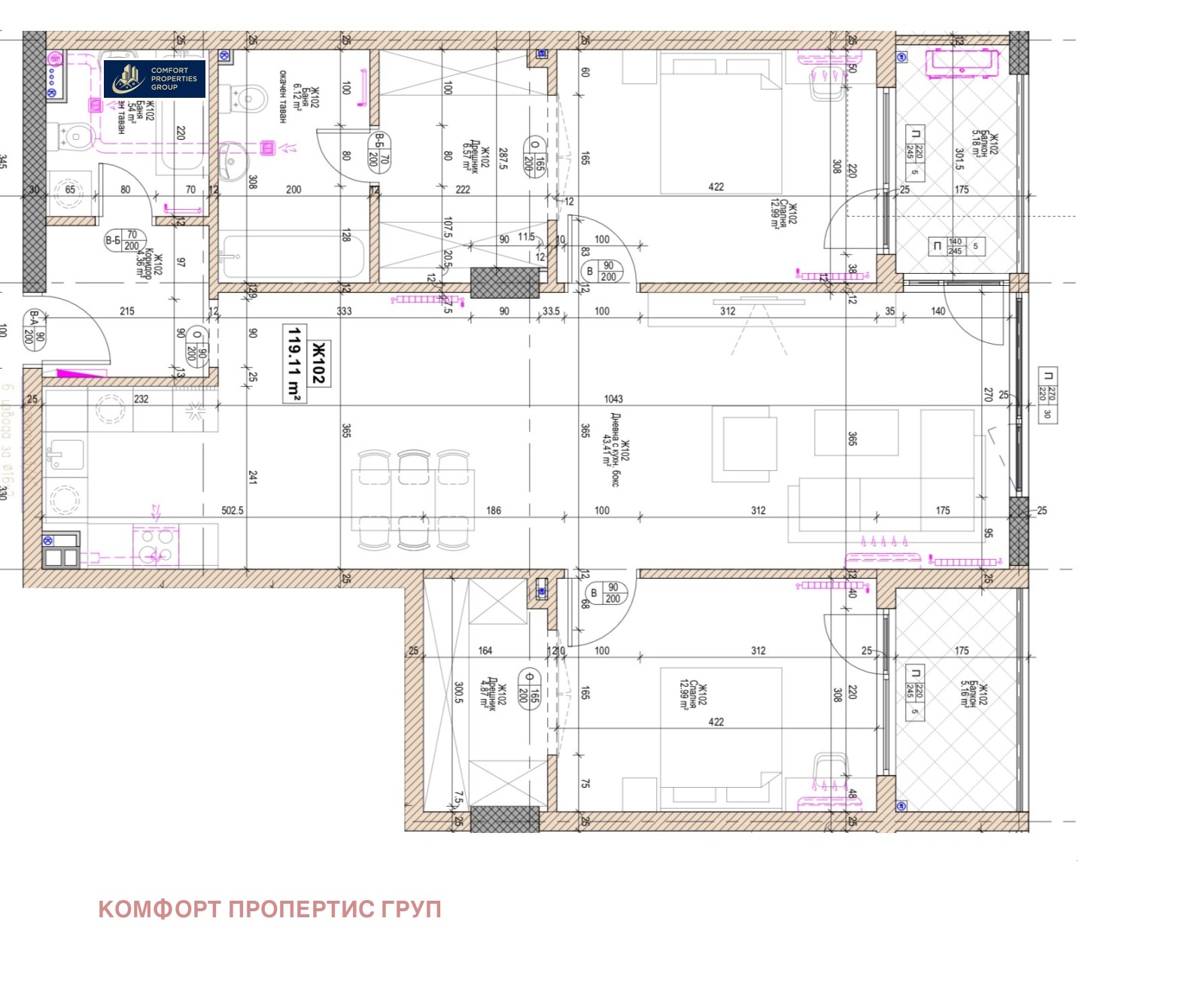
Апартамента е разположен на 2 етаж от 10 етажна жилищна сграда, с площ от 140.58 кв.м с общи части и 119.11 кв.м застроена площ.
Разпределение:
Антре 4.36 кв.м
Дневна с трапезария и кухненски бокс 43.41 кв.м
Спалня 12.99 кв.м + дрешник 4.87 кв.м
Спалня 12.99 кв.м + дрешник 6.57 кв.м + Баня с WC 6.12 кв.м
Баня с WC 4.54 кв.м
Два Балкона 5.16 кв.м и 5.18 кв.м
Изложение: Запад
За изграждането на сградата ще бъдат използвани съвременни и качествени технологии и материали.
Характеристики на сградата:
Входно антре и стълбищните площадки гранитогрес/теракота/ или др.
Асансьор.
Изградени връзки с възможност за доставка на кабелна телевизия и интернет.
Стените и таваните в общите помещения гипсова шпакловка и латекс.
Външна топлоизолация на цялата сграда.
Монтирана входна врата на блока.
Вертикалната планировка тротоари, озеленяване и градинско осветление.
Апартаментите ще се издават по БДС:
циментова замазка на пода;
стени и тавани гипсова шпакловка;
бани и тоалетни мазилка на стени и таван;
тераси с гранитогрес /теракот/ или др.;
PVC дограма;
входна врата метална с касова брава;
изпълнена ОВ инсталация до тапа;
изпълнена електрическа инсталация с монтирано апартаментно табло без заредени ключове и контакти;
изпълнена ВиК мрежа от полипропилен и PVC до тапа;
възможност за включване към инсталация за кабелна телевизия и телефон;
изградена домофонна и звънчева инсталация с монтирани тела.
В допълнение има възможност за закупуване на паркоместа :
Паркоместа във Вход Ж : на етаж Партер = 30 000 евро. Паркоместа на етаж Сутерен 1 = 25 000 евро. Склад на цени от: 3 500 4 500 евро.
Отлична локация на пешеходно разстояние от:
Супермаркети, магазини и търговски центрове, аптеки, поликлиники, ресторанти, кафенета, спирки на градския транспорт, КАКТО И БЪДЕЩА МЕТРОСТАНЦИЯ НА 5 МИНУТИ ПЕШ, които правят достъпа до всяка точка на града лесен и удобен.
Примерна схема на плащане:
10% на ПД
90% на Акт 16
План на строителството:
Сградата е с Акт 15!
Сградата очаква да бъде въведена в експлоатация / Акт 16



