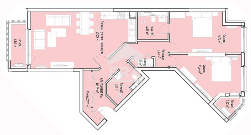
ЕRA Младост предлага жилище с застроена площ на апартамента 116.39 кв.м., със следното разпределение: входно антре, склад, дневна с кухненски бокс, две спални, две бани с тоалетни. Изложение: юг/север. Без комисионна!
Сериозна и утвърдена строително-инвестиционна компания, печелила награди за реализирани проекти и сгради. Сигурност, качество, коректност и опит я отличават и характеризират в строителния бранш.
Комплексът се намира на комуникативно място, на пешеходно разстояние от метростанция Бизнес Парк , магазини Кауфланд , Фантастико , Технополис , Спорт Депо , КОМО и пред него се разкривачудесна гледка към Витоша.
Сградата се състои от 3 входа с девет надземни и два подземни етажа с гаражи и паркоместа. На партер има апартаменти с обособени дворни места.
Фасадата ще е окачена от еталбонд и HPL облицовка,асансьори Orona, пет-камерна немска PVC дограма със троен стъклопакет, ТЕЦ, изградена климатична инсталация във всяко помещение, блиндирани пожаро устоичиви входни врати на Солид.
Разполагаме с едностайни, двустайни, тристайни и четиристайни апартаменти. Голяма част от апартаментите са с изглед към Витоша, с функционални разпределения. Комплексът е от затворен тип с жива охрана,видеонаблюдение и контрол на достъпа.
Очаквана дата за завършване на комплекса края на 2025г.
Предвидено е управление на общите части в комплекса, които включват цялостна организация, поддръжка и оперативен мениджмънт за комфортен престой на собственици на имотите в комплекса, с осигурена жива охрана и видеонаблюдение.
Месечната такса за поддръжка и управление в комплекса 1,20 лева без ДДС върху РЗП за апартаменти и 0,60 лева без ДДС за паркоместа и гаражи.
Схема на плащане при ползване на ипотечен кредит:
Депозит за стопиране на имота от продажба, който става част от първата вноска след подписване на предварителен договор.
20% - при подписване на предварителен договор
40% - на акт 14 с прехвърляне на имота и плащане на част от кредита
30% - на акт 15
10% - на акт 16
При плащане със собствени средства:
25% - при подписване на предварителен договор
45% - на акт 14
20% - на акт 15
10% - на акт 16
ЕРА България е независим кредитен посредник към БНБ с номер BCI000024 и предоставя безплатна консултация и съдействие при финансиране на избрания от Вас имот.
Оферта 0311053







