Организация Фокус има удоволствието да ви представи тристаен апартамент в новострояща се сграда в квартал Беломорски, град Пловдив!
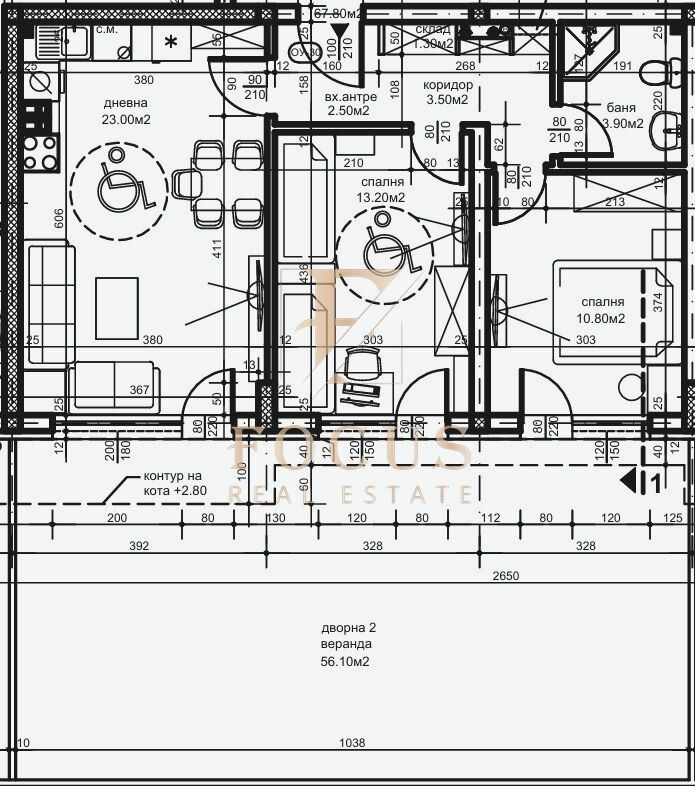
Апартаментът е с обща площ от 76,91 кв.м. със следното разпределение: антре, дневна с кухненски бокс, две спални, баня с тоалетна, отделна тоалетна склад и веранда - 56,10 кв.м.
Изложението на имота е юг.
Ситуиран на партерен етаж от общо 4.
Кварталът е характерен с уютната и спокойната си обстановка. Наличието на зелени площи и паркове го правят подходящо място за живеене.
Сградата е само с 4 етажа, идеален избор за хора, търсещи тишина.
С възможност за закупуване на гаражи.
Очакван срок за експлоатация - 06.2027 г.
За повече информация и огледи, не се колебайте да се свържете с нас!
Референтен номер: 51987







