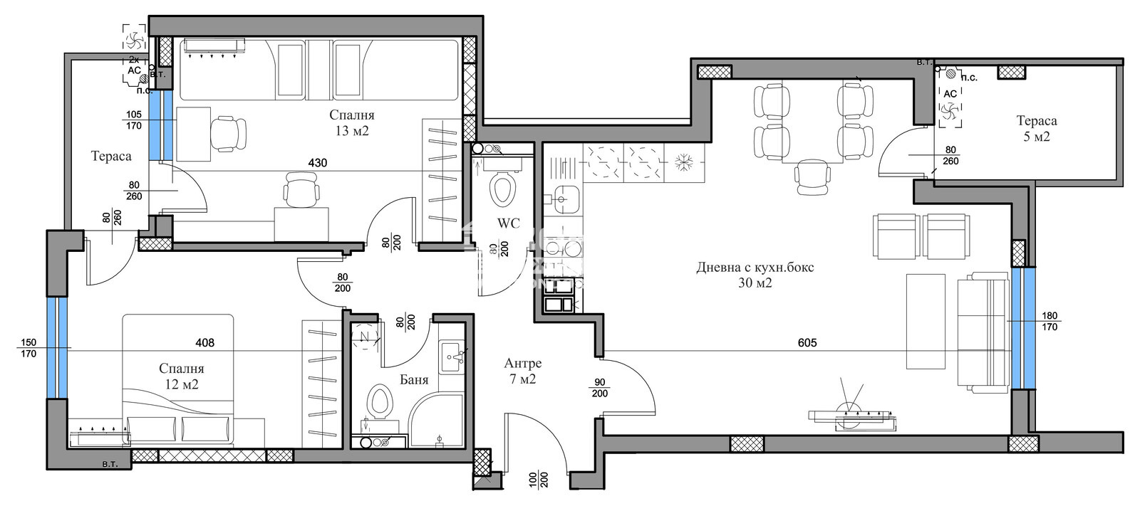
Предлагаме ви за продажба тристаен нов апартамент в новоизграждаща се луксозна сграда, отличаваща се със съвременна и стилна архитектура в един от най- развитите квартали на града, с Перфектна локация на приятно и спокойно място в близост до училища, детска градина, паркове и удобен транспорт - ОТЛИЧНА ИНВЕСТИЦИЯ !!! Жилището се състои от дневна с трапезария и кухненски бокс 30кв.м., две самостоятелни спални с площ от 12 и 13кв.м., баня с WC, втора тоалетна, входно антре и две тераси. Към апартамента има прилежаща изба !!! Сградата се строи от строителна компания с дългогодишен опит в бранша с редица завършени обекта в града. Изпълнението е на изключително високо ниво. Жилищата ще бъдат завършени съгласно всички изисквания на съвременното строителство - блиндирана врата, 6 - камерна дограма, МДФ вътрешни интериорни врати. Сградата ще разполага с още: луксозно завършени общи части, италиански хидравличен асансьор, двойна хидро и топлоизолация. Можем да покажем готови сгради на същия строител,за да придобиете представа за качеството на изпълнение. Има възможност за закупуване на паркоместа , партерни и подземни Гаражи. Осигурено Банково Финансиране или изплащане на вноски в рамките на строителството !!!
ВИЖТЕ ОЩЕ ИЗГОДНИ ОФЕРТИ НА https://www.kondorimoti.com/ С ЕЖЕДНЕВНА АКТУАЛИЗАЦИЯ!
Виж всички обяви в kondor.bazar.bg или тук







