На вашето внимание предлагаме просторен и функционален тристаен апартамент в новострояща се сграда в близост до Парк Възраждане.
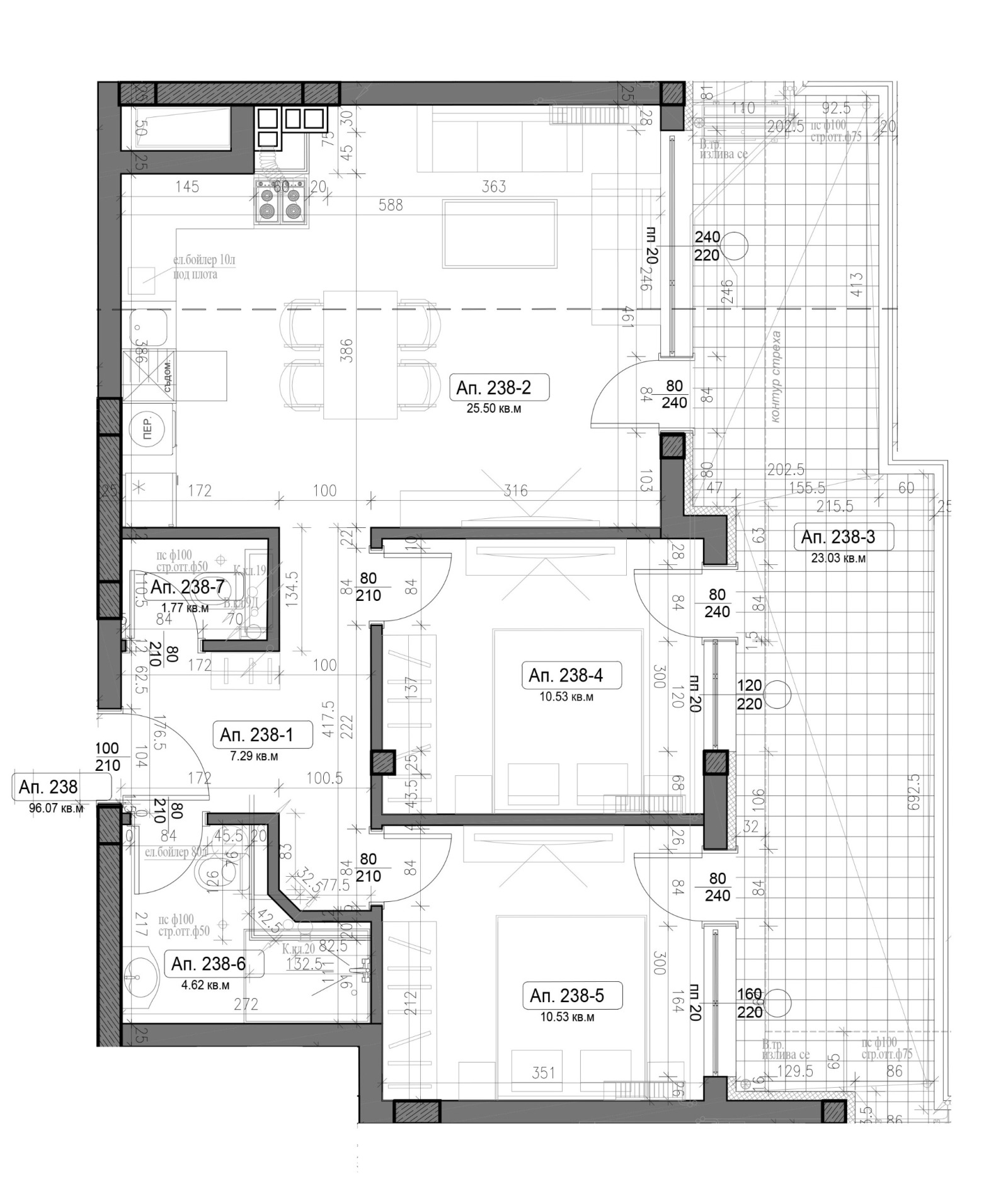
Жилището се намира на седми жилищен етаж от седем и се състои от входно антре, просторна и светла всекидневна с кухненски бокс, две спални, баня с тоалет в едно, отделно тоалет и панорамна слънчева тераса.
Сградата ще бъде завършена с висок клас материали и луксозни общи части, като се прилагат най-новите технологии в строителството.
В сградата се предлагат различни по размер двустайни и тристайни апартаменти, както и подземни паркоместа.
Предвидено е озеленяване на прилежащите площи и алеи с кътове за почивка.
Кв. Възраждане 1 е един от най-бързо развиващите се квартали на гр. Варна. За удобство на собствениците в близост има големи хранителни вериги, поликлиника, училища, парк, плувен басейн и други. Сградата се намира само на 3 км. от центъра на града, 700 м. до Делта Планет Мол, като в непосредствена близост има спирки на градския транспорт.
При избор на имот винаги може да разчитате на безплатна консултация от специалистите от РОНЕВА ООД. Предлагаме също така и съдействие за отпускане на банков кредит и помощ при сключване на сделки и подготвяне на нужната документация.
ОФЕРТА 80281
www.roneva.bg







