РС ЕСТЕЙТС предлага за продажба:
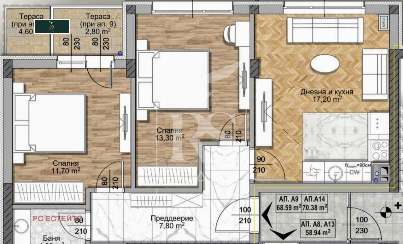
Просторен тристаен апартамент в новострояща се жилищна сграда. Площ: 88,26 кв.м. (чиста площ: 70,38 кв.м. + 17,88 кв.м. общи части + мазе 1,62 кв.м)
Проекта се отличава с високо качество на строителството и материалите, сигyрност за завършването на сградата в срок и гъвкави схеми на плащане. Жилището се намира в сграда в строеж с очакван Акт 16 през месец октомври 2027 година. Жилището е с тавани с височина 2,65 метра и е със статут на апартамент. Сградата ще бъде построена с най-висококачествените материали, познати на съвременните тенденции в строителството, в съчетание с атрактивна архитектура създадена от висококвалифицирани проектанти, доставяща максимална функционалност и комфорт за своите потенциални обитатели.
Отопление: газ
Етаж: 3 / 5
Асансьор: да
Към жилището се предлага подземен гараж в сградата на допълнителна цена 28 000 Евро
Локация:
Сградата е в близост до метростанция Мизия, училища, детски градини както и множество търговски обекти и супермаркети в Овча Купел.
Разпределението е:
Входно антре,
баня с тоалетна,
голяма и просторна всекидневна с трапезария,
2 спални,
тераса, мазе.
Изложение: запад/север/изток
Предимства на имота:
Само на 200 метра от метростанция Мизия
Доказан строител с високо качество на построените сгради
Бърза и лесна комуникация
Чудесна и сигурна инвестиция с гарантирана доходност при отдаване под наем
Оглед на имота:
Можем да организираме оглед на имота в удобно за Вас време. За целта, свържете се с отговорния за офертата брокер и му кажете кога бихте искали да направите оглед.
Резервация на имота:
Имотът може да бъде резервиран и свален от продажба със заплащане на депозит, след което се прекратява провеждането на огледи с други купувачи и започва подготовка на документите за сключване на предварителен и окончателен договор. Свържете се с отговорния брокер за този имот за подробна информация.
Финансиране на имота:
Агенцията си партнира с най-големия кредитен посредник в България и можем да ви съдействаме с преференциални условия за жилищно кредитиране.
Виж всички обяви в rs-estates.bazar.bg или тук







