Сградата се намира само на 300 м от Метрoстанция 'Овча купел'.
Мястото е изключително комуникативно, но и спокойно, с модерна инфраструктура и в близост до основните пътни артерии на града.
Изложение - Югоизток!
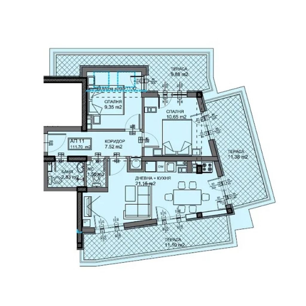
Разпределение: коридор, две спални, дневна с кухненски бокс и трапезария, баня с тоалетна и три тераси с достъп от всяка стая!
Отоплението е на Газ и ток с климатици.
Издава се на шпакловка и замазка, като има възможност за довършване до ключ.
Към апартамента има и мазе включено в цената!
Има възможност за покупка на парко място.
Сградата се изпълнява с качествени матеиали с доказан произход.
Съдействие за кредит от всички банки при най- добрите условия без такса за нашите клиенти!
При организиране на оглед се подписва протокол за оглед!
Виж всички обяви в vladimir85.bazar.bg или тук







