СПЕЦИАЛНО ПРЕДЛОЖЕНИЕ- Малка сграда с нисък % общи части. Нов, модерен проект представляващ малка жилищна сграда на асфалтов път, която към момента е пред акт 14. Разпределения - Просторни и много функционални апартаменти с просторни стаи и гледка към Родопите, а също и с прекрасни жилища с веранди.
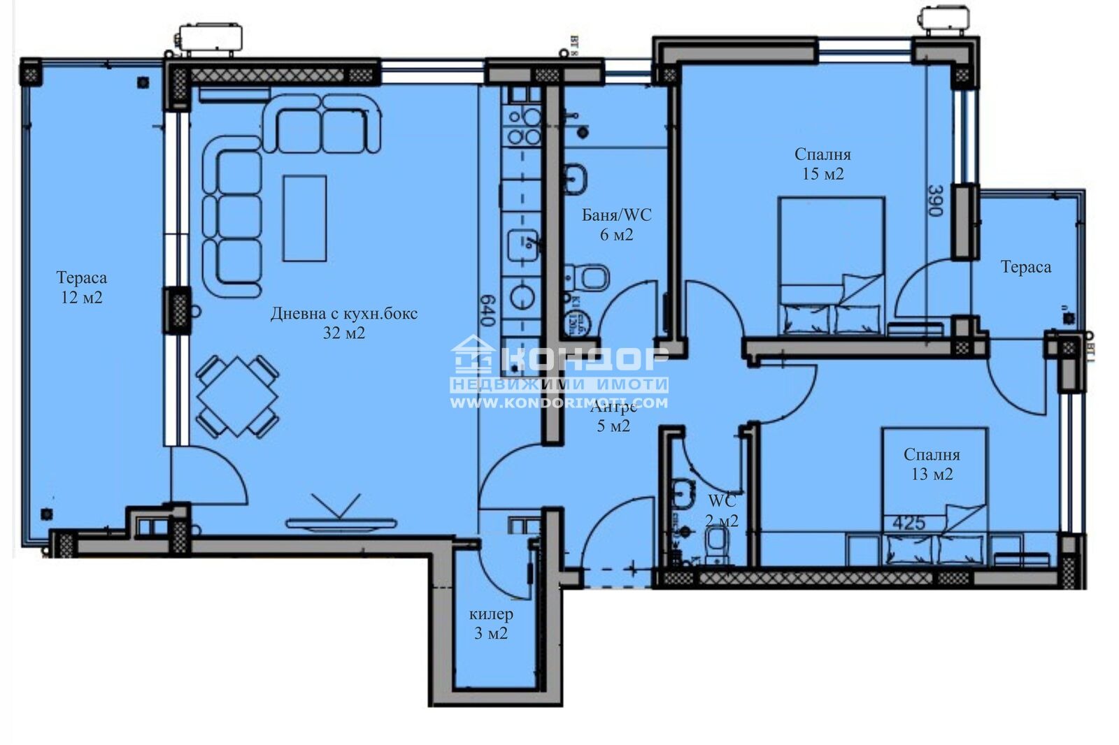
Апартаментът, който Ви предлагаме се състои от просторна югозападна дневна 32кв.м. с трапезария и кухненска част и излаз на тераса 12кв.м., две големи самостоятелни спални с излаз на обща тераса: детска 13кв.м. и родителска 15кв.м., баня с тоалетна, втора тоалетна, килер подходящ за перално помещение и входно антре.
Материали - Жилищната сграда се изражда съгласно най-високите технологични изисквания за качество и лукс. Само по два апартамента на етаж гарантират малко и подбрани съседи. Използваните материали са съобразени с най-новите тенденции в строителството - модерна външна облицовка, покривна и фасадна изолация, PVC пет камерна дограма и др. Луксозните общи части, фотоклетки и безшумен асансьор, допринасят допълнително за усещането за лукс и комфорт на обитателите. За удобството на своите собственици, сградата разполага с гаражи и паркоместа. Проектът е предназначен за модерния забързан човек търсещ удобствата на града, но в тиха и спокойна среда далеч от шума и мръсния въздух. Разсрочено плащане в рамките на строителство !!!ВИЖТЕ ОЩЕ ИЗГОДНИ ОФЕРТИ НА https://www.kondorimoti.com/ С ЕЖЕДНЕВНА АКТУАЛИЗАЦИЯ!
Виж всички обяви в kondor.bazar.bg или тук
        
       
         
         
         
         
         
             
             
             
             
            






