Translations in other languages:
All real estate ads published on imot.bg have been translated into English and published on the partner site
Получихте нова обява по филтър





Промяна на цена на наблюдавана обява


стара цена
нова цена
imot.bg – обяви за продажби и наеми на имоти
Сайт за имоти №1
Translations in other languages:
All real estate ads published on imot.bg have been translated into English and published on the partner site
ДОБАВИ ОБЯВА Редакция на обява
Начало Публикуване Търсене Нови сгради Агенции Новини Кредити Моят имот
Продава 3-СТАЕН
град Пловдив, Тракия
104 020 €
203 445.44 лв.

(963 €, 1 883.46 лв./m2)
Цената е с включено ДДС
История на цената
Коригирана в 11:28 на 11 декември, 2025 год.
Обявата е посетена 1051 пъти.
Площ:
108 m2
Етаж:
2-ри от 10
Строителство:
Тухла, Ще бъде въведен в експлоатация 2027 г.

Описание на имота:


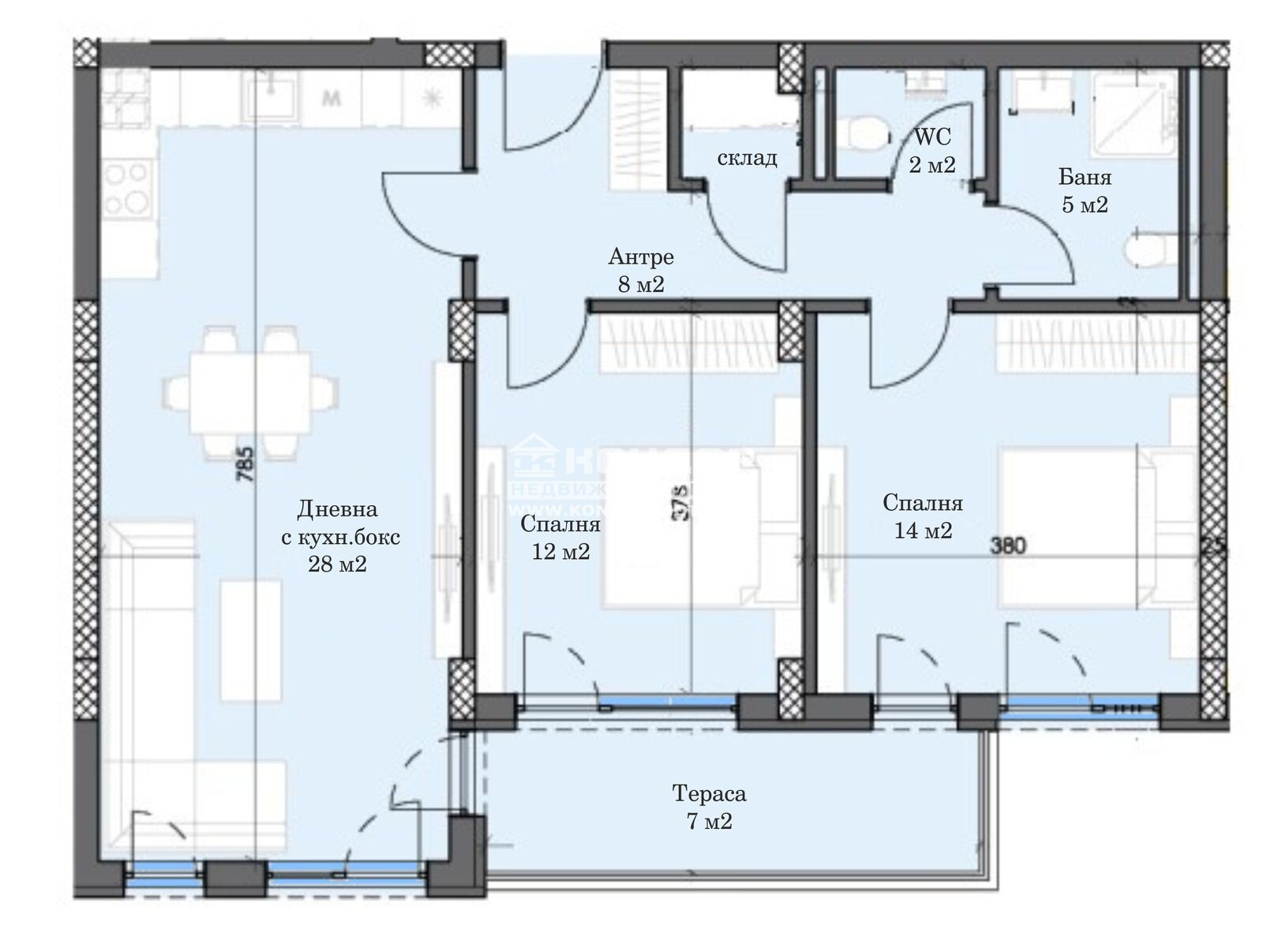
Оферта 66800: Предлагаме Ви възможността да закупите 3 - стаен апартамент с ИЗЦЯЛО ЮЖНО ИЗЛОЖЕНИЕ в новоизграждащ се луксозен жилищен комплекс с модерна визия, проектиран да създаде максимален комфорт на живущите в него. Функционално разположени жилищни секции с елегантен силует готов да предложи комфорт и модерен начин на живот. Едно от основните му предимства е страхотната локация, отлична комуникативност и динамична пътна инфраструктура, която осигурява бърз и лесен достъп до комплекса от всяка точка на града. Той съчетава лукс, спокойствие и комфорт с подсигурени паркоместа и гаражи. Жилището се състои от просторна дневна/29 кв.м./ с кухненска част и трапезария, две самостоятелни спални: детска 12,28кв.м, и родителска 14,36м2, баня с тоалетна, втора тоалетна, перално, входно антре с място за гардероб и една тераса. Основната концепция при проектирането е да се постигнат просторни и функционални стаи, с цел да се създаде максимален уют на модерното семейство. Изключителна съвременна архитектура и модерна технология на строителство. Визията е иновативна, привличаща внимание с уникалността си. Всяко жилище ще разполага с пълно окабеляване за домофон, интернет и кабелна телевизия, общите части са луксозно завършени, жилищата са с алуминиева дограма с троен стъклопакет от най-висок клас, масивна блиндирана входна врата. За удобство на живущите съществува възможността да закупят подземни паркоместа и гаражи с топла връзка към комплекса. Гъвкави схеми на разсрочено плащане спрямо възможностите на клиента в рамките на строителството или закупуване чрез Банков Кредит, на изключително изгодни условия за клиенти на агенцията !!! Приложените изображения са от завършени проекти на строителната фирма.ВИЖТЕ ОЩЕ ИЗГОДНИ ОФЕРТИ НА https://www.kondorimoti.com/ С ЕЖЕДНЕВНА АКТУАЛИЗАЦИЯ!
Особености
Тухла
За контакт:
0897777032

Този имот се предлага само на частни лица
Брокер:
Кондор Имоти
0897777032
Още оферти от брокера: Продава | Дава под наем | Купува | Наема
Агенция:
КОНДОР - НЕДВИЖИМИ ИМОТИ
0897 777 032 , 0893 554 200;
КОНДОР - НЕДВИЖИМИ ИМОТИ logo
Медал за прослужено време
В imot.bg от 2004 г.
kondor.imot.bg
Адрес:
област Пловдив, гр. Пловдив, ул.Петко Д.Петков 23,ет.4 /до ТЦ Гранд/
http://www.kondorimoti.com
ИЗПРАТИ ЗАПИТВАНЕ
ИЗПРАТИ ЗАПИТВАНЕТО

Продава 3-СТАЕН
град Пловдив, Тракия
Обява: 1c174584549191112

104 020 €
203 445.44 лв.
История на цената
(963 €, 1 883.46 лв./m2)

Цената е с включено ДДС
ЗАПАЗИ ОБЯВАТА

Местоположение: град Пловдив, Тракия

Виж още имоти от Пловдив или още Тристайни Апартаменти в Пловдив
Допълнителни данни за имотите в района и сравнение с други райони: Търсене в АРХИВ 2013 - 2025 г.











Добави/редактирай
вид имот и район
*Средните цени са определени чрез медиана стойност.
Още обяви в imot.bg
Въпроси и предложения към imot.bg
КОНТАКТИ | SMS КОДОВЕ | ПОМОЩ | ОБЩИ УСЛОВИЯ | РЕКЛАМА | ЗАЩИТА НА ЛИЧНИТЕ ДАННИ | КАРТА НА САЙТА |
Резон Медия | Имоти | Автомобили | Работа | Новини | Обяви | Преводи и легализация 2002-2025 ® Copyright imot.bg
© imot.bg ползва и препоръчва хостинг услугите на Bulinfo.net
Следвайте ни в: