Ако търсите удобен семеен апартамент с простор, светлина и функционално разпределение, този имот е вашето решение. Разположен е в иновативен комплекс, който обединява най-доброто от градската динамика и спокойствието на крайморския живот.
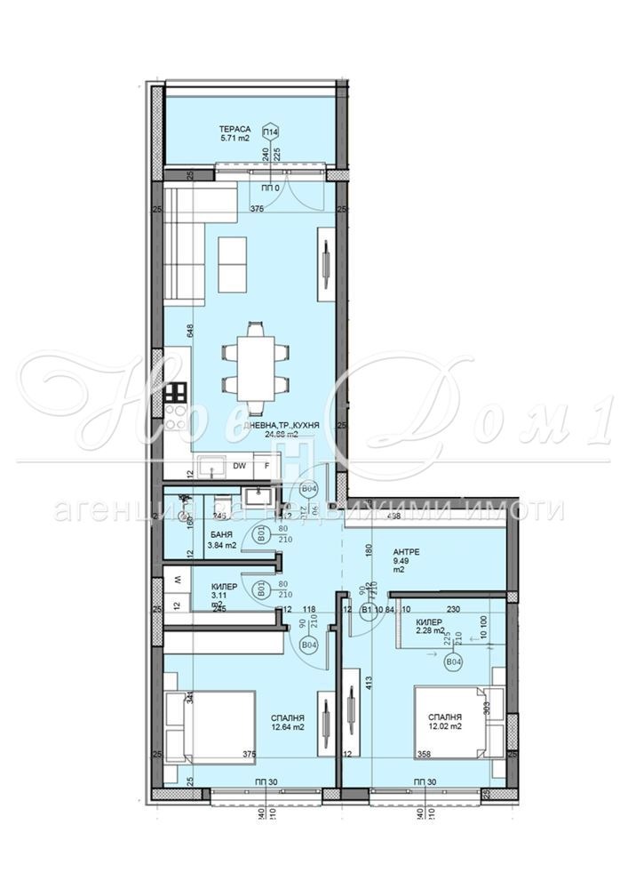
🏠 Разпределение 103,33 м²
Коридор - 9,49 м²
Баня с тоалетна - 3,84м²
Дневен тракт с кухня - 24,68м²
Две самостоятелни спални - 12,64м²/12,02м²
Килер/перално помещение - 3,11м²
Просторна тераса - 5,71м²
Комплексът е своеобразен оазис край брега, който предлага цялостна градска екосистема:
🏫 Образование детска градина и училище
🛒 Търговия и услуги магазини, банков клон, офиси
🌳 Отдих зелени алеи, зони за разходка, богата растителност
🚘 Паркинг, сигурност и вътрешна пътна мрежа
Животът тук е предназначен за хора, които ценят качеството, сигурността и времето си.
📌 Дом, в който всяка стая има смисъл. И всяка сутрин започва с гледка към безкрая.
Цената, която полуавате е преференциална благодарение на следната схема на плащане - 70% при подписване на Предварителен договор(септември) и следваща вноска в размер на 30% при взимането на АКТ 15.
Посочените снимки са ИЛЮСТРАТИВНИ и са сложени, за да Ви дадат максимална представа за бъдещия проект!
Ако има нещо, което сме пропусли като информация, имате коментари или желаете оглед:
Телефон - Всеки Ден от 8:30 до 22:30 - 0895 501 003
Whatsapp - Денонощно: 0895 501 003
Viber - Денонощно: 0895 501 003
Telegram: 0895 501 003
Messenger : Теодор Топалов
Виж всички обяви в novdom1.bazar.bg или тук







