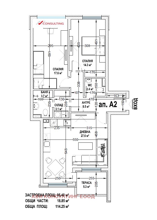
Апартамент А2 се намира на 2-ри етаж, над висок партерен етаж (3.5 метра), с изложение север-юг. Застроената му площ е 95.40 м2, а площта с общите части е 114.25 м2.
Жилището се състои от:
* входно антре 8,5 м2;
* склад 3.1 м2;
* 2 санитарни възела 2.4 м2 и 3.7 м2;
* светла дневна с кухненски бокс 27.6 м2;
* 2 спални 14,3 м2 и 17.6 м2;
* просторна тераса 5.3 м.
Има възможност за закупуване на паркоместа на 2 нива, с механизми за независимо паркиране!
Жилището се предава на машинна шпакловка и изравнителна армирана цименто - пясъчна замазка, с монтирани радиатори. Терасите на мразоустойчив гранитогрес и парапет, входни врати Solid / пожароустойчиви /, система за вградено казанче на моноблок ( система ). Отоплението е на ТЕЦ.
Характеритики на сградата:
Монолитна стомано - бетонна конструкция
Тухли Wienerberger
Шумоизолация на подовете.
Топлоизолационна система на сградната фасада
Дограма Salamander 5 камерен PVC профил с троен стъклопакет
Блиндирани входни врати
Окабеляване за интернет,TV и СОТ и видеодомофонна система. Има и окабеляване за климатици.
Общи части: гранит, миещ се латекс, алуминиеви парапети, осветление на фотоклетка, безшумен асансьор.
За повече информация и огледи Н.Георгиева 0885 408 410;
Сирма Иванова 0889 776 393.
Огледи са възможни след предварителна уговорка.
Работим с колеги.
Виж всички обяви в avi1.bazar.bg или тук
        
       
         
         
         
         
         
         
         
         
         
         
         
         
             
             
             
             
             
             
             
             
             
             
             
            






