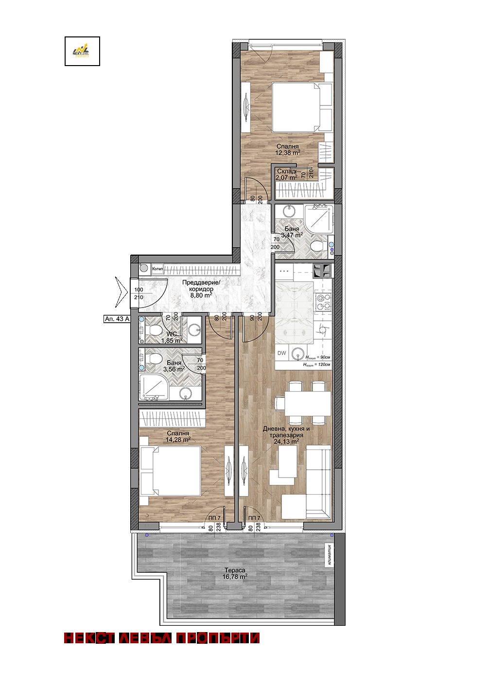
🏢 Представяме Ви тристаен апартамент с чиста площ от 49,16 кв.м. в новостроящ се модерен жилищен комплекс с много качествено строителство, разположен на изключително комуникативно място в непосредствена близост до Околовръстен път и бул. Александър Малинов.
📍 Локация:
На пешеходно разстояние от метростанция, магазини, офиси, фитнеси и Бизнес Парк София.
🏠 За проекта:
Богат избор от двустайни, тристайни и четиристайни апартаменти, както и налични гаражи и паркоместа.
Очакван срок за завършване: края на 2026 г.
Гъвкава схема на плащане съобразена с етапите на строителството.
БЕЗ КОМИСИОННА ОТ КУПУВАЧА.
🔑 Идеален избор както за инвестиция, така и за лично ползване!
За повече информация и огледи:
📞 0877 550 456







