Представяме Ви новострояща се малка, жилищна сграда с нисък % общи части и осигурено паркиране. Сградата е разположена в предпочитан за живеене район, съчетание от спокойна атмосфера, зелени площи, модерен лукс и отлична локация в непосредствена близост до всичко необходимо за едно комфортно ежедневие. В същото време изцяло обновената инфраструктура на района, осигурява бърз достъп до центъра на града.
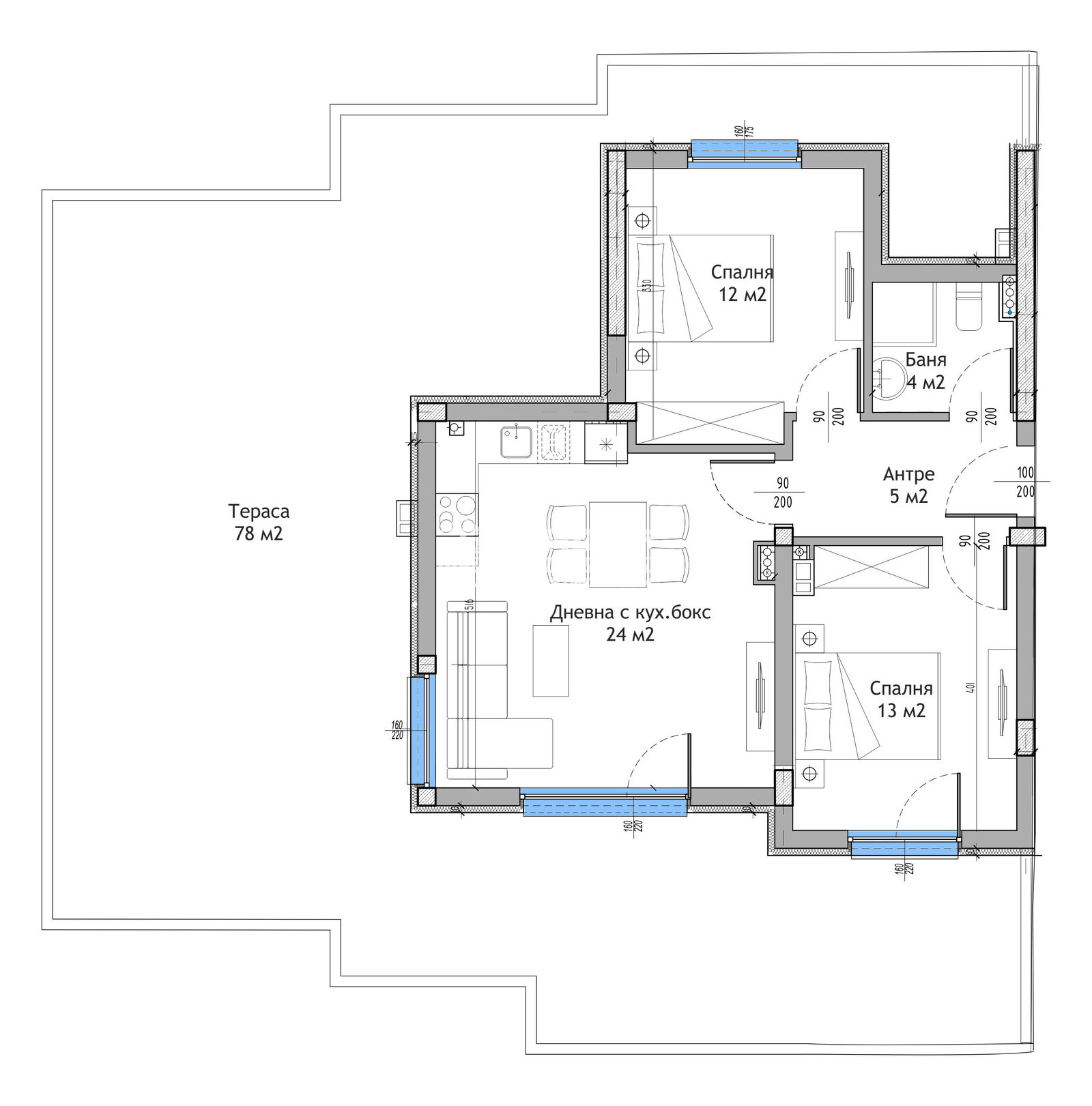
Апартаментът който Ви представяме е със следното разпределение: светла дневна с трапезария и кухненски бокс, две самостоятелни спални, баня с тоалетна, входно антре и прекрасна панорамна тераса от 78 кв.м., с възможност да бъде обособена зона за отдих и релакс.
НАЧИН НА ЗАВЪРШВАНЕ - Луксозни общи части, стени декоративна мазилка, под гранит, осветление с фотоклетки, безшумен асансьор, хидро и топлоизолация, PVC дограма, блиндирани входни врати, луксозно завършване на стълбищната клетка!
ЕКСТРИ - Паркирането е осигурено чрез паркоместа в двора и гаражи на партерно ниво.
НАЧИН НА ПЛАЩАНЕ - Разсрочено плащане в процеса на строителство, както и възможност за договаряне на индивидуални схеми!ВИЖТЕ ОЩЕ ИЗГОДНИ ОФЕРТИ НА https://www.kondorimoti.com/ С ЕЖЕДНЕВНА АКТУАЛИЗАЦИЯ!
Виж всички обяви в kondor.bazar.bg или тук







