ЕRA Младост предлага на Вашето внимание апартамент в новостроящ се модерен жилищен комплекс, разположен в един от най-бързо развиващите се райони на София кв. Овча купел. Локацията осигурява отлична комуникация с града, благодарение на близостта до ключови пътни артерии ул. Монтевидео и Софийския околовръстен път. В района се намира и метростанция Мизия/НБУ , както и множество спирки на градския транспорт, осигуряващи бърз достъп до различни части на столицата.
В непосредствена близост са разположени учебни заведения като 'Нов български университет ' и 'Професионалната гимназия по селско стопанство', детски градини, здравни заведения и зелени зони за отдих, включително парк.
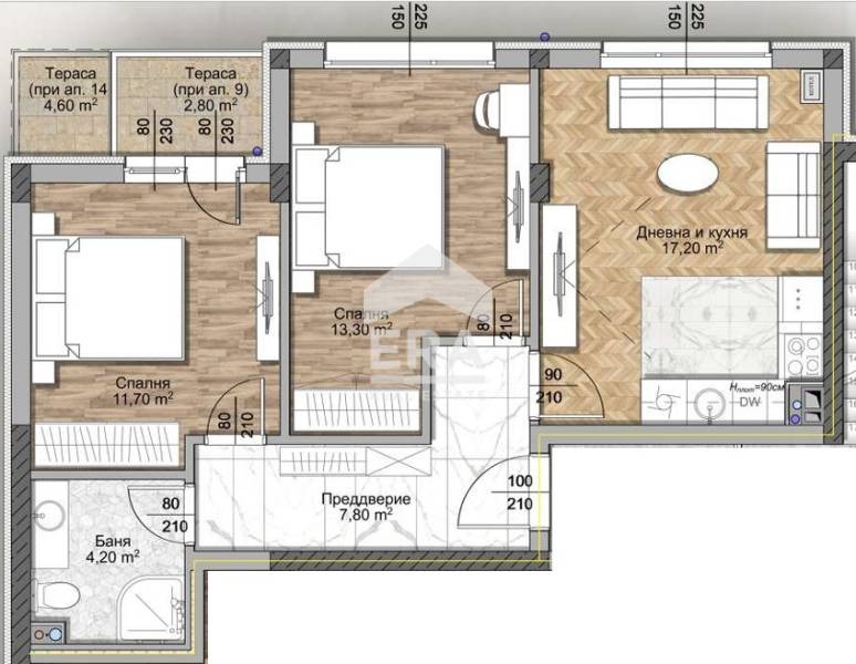
Апартаментът се състои от коридор, дневна с кухненски бокс , две спални, балкон и баня с тоалетна.
Жилищният комплекс е от две сгради Сграда А и Сграда Б.
Сграда А разполага с две подземни нива и пет жилищни етажа.
Сграда Б е проектирана с два подземни етажа и осем жилищни етажа.
Комплекса предлага двустайни, тристайни и четиристайни апартаменти, съобразени с различните нужди на бъдещите обитатели. Осигурени са паркоместа и гаражи, гарантиращи удобство и комфорт за живущите.
Всички обекти се издават в следния вид: ВиК инсталации /изпълнени на ниво тапа/, електроинсталации, звънчево-домофонна инсталация, ТВ инсталация, мълниезащитна инсталация всичките в напълно завършен вид, отоплителна инсталация - на газ, вентилационна инсталация, гладка вътрешна мазилка, бани и санитарни възли на мазилка и замазка, вътрешна стандартна дограма, външна ПВЦ- дограма със стъклопакет, блиндирани входни врати, общи части в напълно завършен вид.
Планиран срок за завършване началото на 2028 година.
ЕРА България е независим кредитен посредник към БНБ с номер BCI000024 и предоставя безплатна консултация и съдействие при финансиране на избрания от Вас имот.
Оферта 0312457







