📐Разнообразие от апартаменти с модерна архитектура
📍Супер локация в близост до Plaza Mall и Метро
🌳Голям озеленен вътрешен парк
🅿Паркоместа и гаражи
🔐Сигурност и комфорт
Атрактивни цени и отстъпки от цената за плащане преди Акт 14.
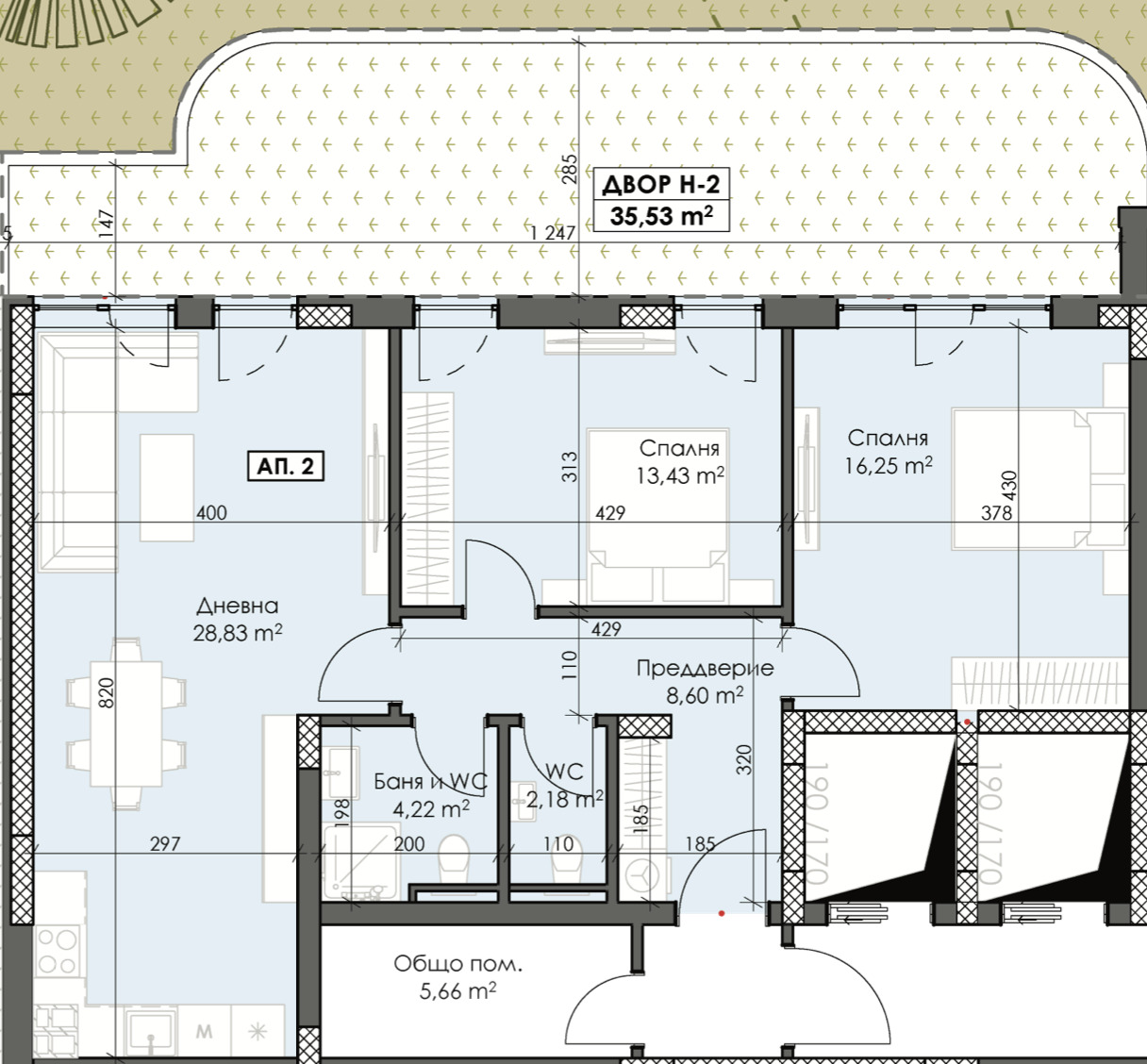
Представеният апартамент се състои от просторна дневна, баня с тоалетна, тоалетна, 2 спални и веранда с двор със западно изложение
Позвъни и научи повече:
📲 0883 601 501
📲 0883 301 201
Виж всички обяви в spresidence.bazar.bg или тук
        
       
         
         
         
             
             
            






