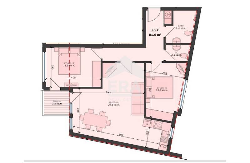
ЕРА Вива предлага за продажба тристаен апартамент в кв. Погреби, гр. Варна. Имотът е с площ 95.81 кв.м. /застроена площ 81.6 кв.м./ и е разположен на втори от общо осем етажа. Състои се от входно антре, дневен тракт кухненски бокс /29,1 кв.м./, две спални /10,8 и 11,6 кв.м./, баня /4,4 кв.м./, тоалетна /2,1 кв.м./ и балкон /3.3 кв.м./. Степен на завършеност по БДС - на шпакловка и замазка, с поставена ПВЦ дограма и блиндирана входна врата. Имотът е подходящ както за живеене, така и за инвестиция.
Нова сграда с модерна архитектура и визия. Енергийна ефективност, постигната чрез съвременни технологии и първокласни материали. Отлична топло-и шумоизолация за максимален домашен комфорт. Функционални разпределения на жилищата. Панорамна гледка към околността. Удобен паркинг на две нива, който осигурява сигурност и спокойствие за автомобилите.
Цената на апартамента остава непроменена от момента на избор до нотариалното прехвърляне на собствеността, което гарантира прозрачност и спокойствие!
Районът е с добра локация - пешеходно разстояние до централната градска част. В близост има основно училище, детски градини, търговски обекти, заведения за обществено хранене, Колхозен пазар. Бърз и лесен достъп до всяка точка на града.
Оферта 1009389







