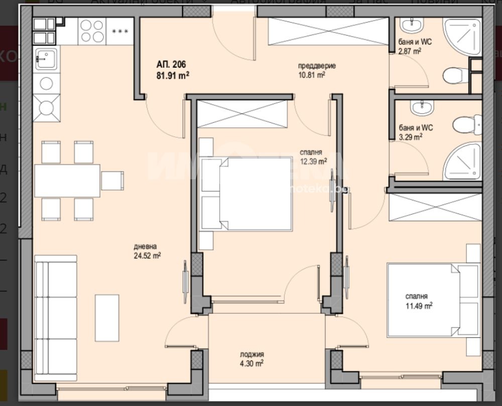
Тристаен апартамент със застроена площ от 81.91 кв.м. Състои се от: преддверие, трапезария 24.52кв.м., , две спални, две бани, склад, лоджия . Изложението е ЮГ/З Има възможност за закупуване на паркомясто или гараж.
Намира се до метростанция 'Сливница' в ж.к. 'Люлин 8'. Районът има добре изградена транспортна инфраструктура и се обслужва от всички видове градски транспорт по главните за столицата артерии: бул. 'Сливница', бул. 'Пенчо Владигеров', ул. 'Филиповско шосе' и Софийски околовръстен път. На 5 км. от пл. 'Лъвов мост' и Централна гара София. В близост са ж.к. 'Обеля', ж.к. 'Западен парк', ж.к. 'Надежда', ж.к. 'Света Троица' и кв. 'Модерно предградие'.
Акт 14
Сградата се състои от два входа и шест надземни етажа, разпределени съответно:
складовите помещения са позиционирани в сутеренния етаж, където и паркирането е решено с очертани единични паркоместа, двойни гаражни клетки, както и с външни паркоместа;
партерен етаж обособени са две търговски помещения, два апартамента и гаражи;
от втори и до шести жилищен етаж двустайни и тристайни апартаменти с функционално разпределение. Акт 14 се очаква през месец Юни 2025 година.
Влаганите материали в строителството и доставчиците са доказали качеството си във времето. Функционални разпределения. Развита инфраструктура. Добро и балансирано съотношение между качество и цена. Непосредствената близост на ж.к. 'Люлин' със Софийски околовръстен път дава бърз достъп до изхода на столицата в посока Сърбия и Гърция.
... Обади се сега и цитирай този код 631598







