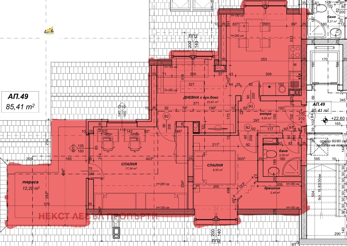
Агенция Некст Левъл Пропърти предлага на Вашето внимание тристаен апартамент от доказан строител със следното разпределение: антре, кухненски бокс с хол и трапезария, две спални, баня с тоалетна и тераса.
ЗП: 85,41м2 | РЗП: 98,56м2 | Изложение: Север
Комплексът предоставя всички удобства, които ще осигурят комфорт и спокойствие в ежедневието Ви. Намира се в район с отлична инфраструктура, предлагащ бърз достъп до бул. Президент Линкълн и Околовръстен път, което прави пътуванията лесни и удобни.
Един от основните му плюсове е стратегическата локация, която съчетава удобство и добра транспортна връзка. В близост се намират метростанция, учебни заведения и детски градини, търговски обекти, както и ресторанти и медицински центрове, които ще осигурят всичко необходимо за Вашето ежедневие.
Не пропускайте възможността да се сдобиете с имот в един от най-предпочитаните райони!
Телефон за контакти: 0876 708 149 Референтен номер:12110







