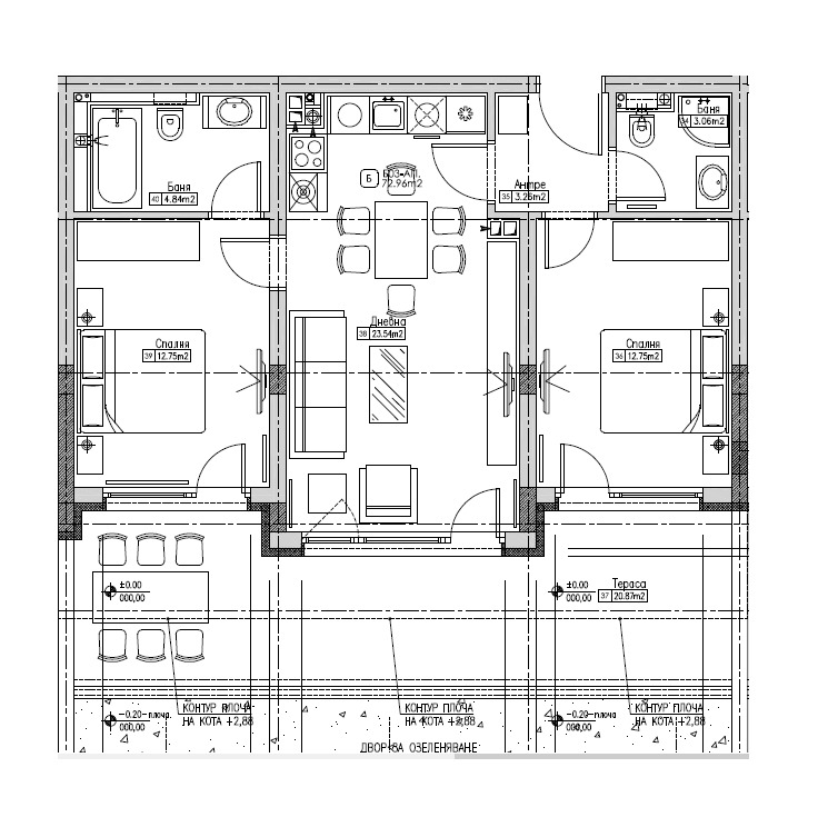
Разгъната застроена площ: 94 кв.м. - Входно антре, денвна с кухненски бокс, две големи спални, два санитарни възела и веранда с двор 54 кв.м..
Изложение: Югозапад
Местоположението и разположението на сградата са подбрани внимателно, района е много спокоен и комуникативен с директен достъп до Околовръстен път и ул. Ефрем Чучков. В близост са разположени спирки на градски транспорт, метростанция 'Обеля', училища, детски градини, ресторанти, аптека, супермаркети и много други. Подходяща за семейства с деца или инвестиция
Предвидени са четири етажа с двустайни, тристайни и четиристайни апартаменти.
Архитектурата на сградата е модерна и съчетава в себе си комбинация от традиционни материали, като камък, метал и мазилка по фасадите.
Сградата е проектирана с два входа, луксозни общи части, зелени пространства и топла връзма между двата входа. Строителството ще бъде изпълнено с висок клас материали.
Общи технически параметри на сградата:
- Конструкция монолитен стоманобетонен скелет с керамична тухлена зидария Wienerberger Porotherm N+F 25 за външните зидарии и Wienerberger Porotherm 12 см за вътрешните преградни стени;
- Фасада - комбинация от камък, метал и силиконова мазилка Баумит;
- Топлоизолация Баумит Стар Терм Графит 10 см с коефициент 0,031 W/mK;
- Дограма 7 камерна ПВЦ дограма с 80-милиметров троен стъклопакет;
- Асансьор 'Liftkom';
- Покрив по архитектурен детайл пароизолационна мембрана; XPS 15 см и замазка за наклон; двупластна хидроизолация 4 мм;
- Луксозни входни врати: блиндирани с касова брава;
- Стени и Тавани: машинно-гипсова мазилка Баумит;
- Под: машинна цименто-пясъчна замазка с машинно шлайфане с максимална дебелина до 5 см;
- Балкони: първокласен мразоустойчив гранитогрес върху циментова замазка;
- Луксозно изпълнени общи части с под гранит и латекс по стените, парапет метал и скрито осветление;
- Тераси: два пласта италианска хидроизолация и настилка гранит;
- Опции за отопление: климатици, предвидено е извеждане на разводки за климатици и система за газ;
- Слаботокови инсталации - водопровод с пропиленови тръби и канализация с шумопоглъщащи PVC тръби;
- Хидро и шумоизолация от най-висок клас по покрива и цялостна система за хидроизолация в сутерена;
- Възможност за самостоятелни големи складови помещения в сутерена към всеки гараж;
- Общо помещение за портиерна, детски колички и колела на партера в сградата;
- Удобен правоъгълен гараж в сутерена, с голяма маневрена зона и паркоместа от минимум 6 метра дълбочина;
ЕВОЛЮТ - Недвижими имоти предоставя безплатно съдействие и консултация за ипотечни кредити от всички водещи банки в страната!
За повече информация и огледи се обадете сега и цитирайте този код: 63 080
Виж всички обяви в evolutview.bazar.bg или тук
        
       
         
         
         
         
         
         
             
             
             
             
             
            






