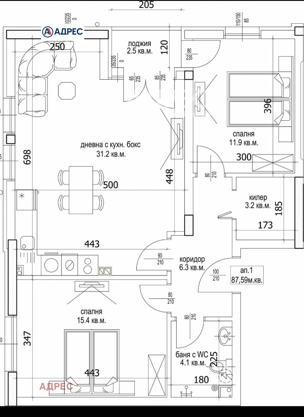
В продажба е тристаен апартамент в новострояща се сграда. Имота се състои от дневен тракт 31,20 кв.м, две спални по 12 и 15,4 кв.м, баня с тоалетна, голям килер и коридор, има обща лоджия на едната спалня и дневната.
Имота се продава по БДС стандарт. Сградата се изгражда от доказан инвеститор и строител с 20 годишна практика в града, доказал своята коректност и изпълнителност.
Подходящ е за кредитиране. Налични за продажба има отделно паркоместа.
Лесен достъп, в близост са хипермаркети, автобусни спирки и институции.
Сграда с модерна визия и прецизно изпълнение с най-висок клас строителни материали, гарантиращи дълготрайност и енергийна ефективност.
Гъвкави схеми на плащане. Промоционални условия за кредитиране от водещи банки.
Всички комуникации и пътни артерии в близост.
Достъпни цени, висококачествено строителство.
Обади се сега и цитирай този код 649132







