СТРАХОТЕН 3-СТАЕН АПАРТАМЕНТ! ДОКАЗАН СТРОИТЕЛ! РАЗСРОЧЕНО ПЛАЩАНЕ! СРЕДЕН ЕТАЖ! СРЕДЕН АПАРТАМЕНТ!ОПЦИЯ ЗА ПАРКОМЯСТО ИЛИ ГАРАЖ!
Property Store - Магазин За Имоти, Ви предлага тристаен апартамент за продажба в нова луксозна сграда в етап на строеж - гр. Варна.
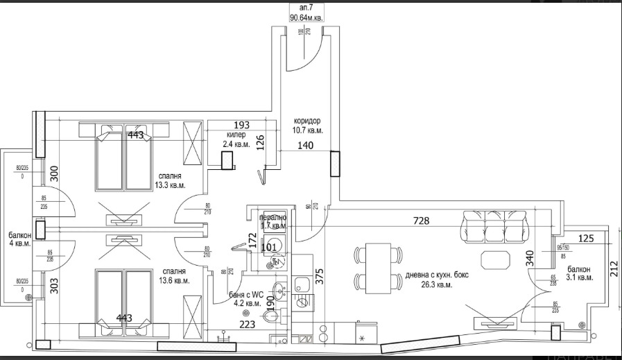
Разпределение - просторна всекидневна с кухненски бокс, 2 спални, входно антре/коридор, баня с тоалет, втора тоалетна, килер-перално помещение и тераса.
Имота се издава по БДС
Общи части:
- подови настилки и стъпала от гранит;
- стени - декоративна мазилка;
- високоскоростни асансьори ORONA;
Апартаменти:
- вътрешни стени с гипсова мазилка;
- тавани - гипсокартон;
- под на стаите - циментова замазка;
- баня и тоалет - под - циментова замазка, стени -вароциментова мазилка;
- ел. инсталация - завършена напълно до ключове, контакти;
- В и К инсталации - завършени до тапа;
- изграждане на тръбни връзки, осигуряващи възможност за монтаж на климатици, на определени по архитектура места;
- външна врата - блиндирана висок клас;
- прозорци - Висококачествена дограма PVC - 5 или 6 камерна REHAU или KOMMERLING, със стъклопакет 6 мм четири сезона, 4 мм К стъкло, с двойно отваряне, подпрозоречни первази;
* Снимките са от предходна сграда на същият инвеститор с цел да придобиете представа по какъв начин ще бъде издаден имота. Към момента сградата е с А14, което позволява кредитиране на апартамента.
Агенция Property Store - Магазин За Имоти, Ви предоставя възможност за съдействие на преференциални условия за отпускане на Банков кредит.
ЗА ПОДРОБНА ИНФОРМАЦИЯ И ОГЛЕДИ: Ивелин Радославов 0899 999 081







