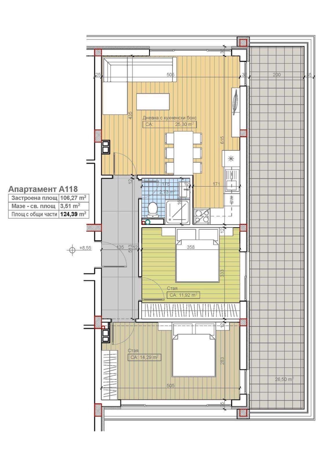
Тристаен апартамент с голяма покривна тераса А118 изложение: изток - север - запад, на отлична локация над кв.павлово в м.Гърдова глава (част от кв.Бояна) на ул.'Преки път' 84 в луксозна жилищна сграда с изцяло окачена вентилируема фасада и дограма от композитен материал GENEO на REHAU с троен стъклопакет, четворна хидроизолация на покрив и покривни тераси. Етап: Довършителни работи; Крайната цена е с включен ДДС.
Виж всички обяви в msviat.bazar.bg или тук
        
       
         
         
         
         
         
         
         
         
         
         
         
             
             
             
             
             
             
             
             
             
             
            






