ТОПИММО предлага за продажба тристаен апартамент в новострояща се сграда в района на Цветния квартал.
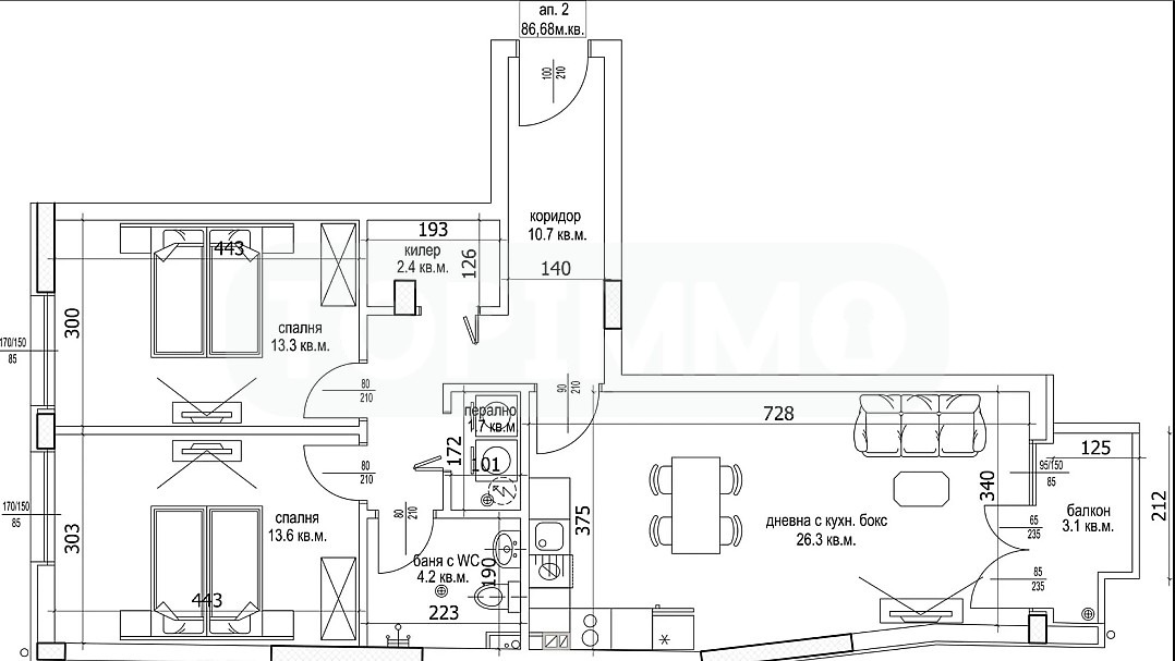
Апартаментът е разположен на 2-ри етаж в осеметажна сграда, на площ от 99,03 кв.м. са разпределени коридор, дневна с кухненска част, 2 спални, баня с тоалетна, килер и балкон. Издава се в степен на завършеност по БДС.
Възможност за покупка на открити и закрити паркоместа на цени от 20 000 до 26 000 Евро
Схеми на плащане:
Вариант 1:
30% при подписване на Предварителен договор
20% при готова покривна плоча на четвърти етаж
30% при подписан акт обр.14
20% при подписан акт обр.15
Вариант 2:
40% при подписване на Предварителен договор
60% с кредит при подписан акт обр.14
/цени от вариант 1/
СТЕПЕН ЗА ЗАВЪРШЕНОСТ НА ОБЕКТА:
Общи части на сградата
подови настилки и стъпала от гранитогрес или гранит
стени - декоративна мазилка
асансьор - ORONA
Жилище
вътрешни стени - тухла с гипсова мазилка;
тавани гипсокартон
под на стаи - циментова замазка;
баня - тоалет: под циментова замазка, стени вароциментова мазилка;
ел. инсталация: завършена напълно до ключове, контакти, оптичен кабел до апартамент;
В и К инсталации: завършени до тапа;
изграждане на тръбни връзки за монтаж на климатици, на определени по архитектура места.
външна врата блиндирана с облечена декоративна каса;
прозорци: висококачествена PVC дограма - 7 камерна с тройни стъклопакети, 6 мм четири сезона/ 4 мм бяло флоатно стъкло/ 4 мм К;
паркинг - шлайфан бетон на под;
фасада - комбинация от мазилка с камък, HPL и керамика;
покрив - хидро и топлоизолация.
В сградата са налични и други тристайни и двустайни апартаменти, за повече информация, свържете се с нас! Референтен номер: AP-3961







