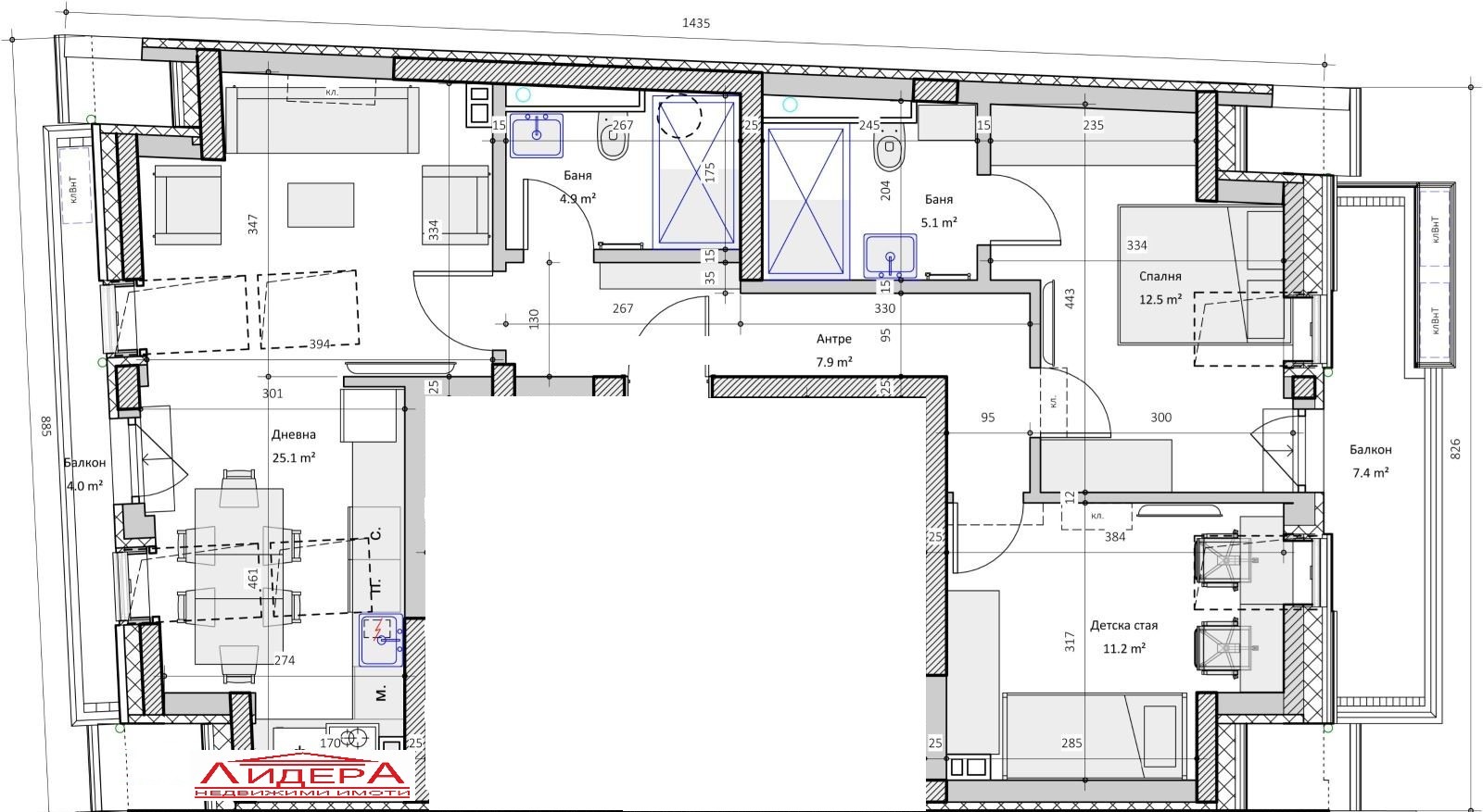
Оферта 82159 Предлагаме Ви тристаен апартамент в нова модерна сграда,която ще бъде завършена 2025г. и се намира на комуникативно място в района на кв. Кършияка. Жилището се намира на шести етаж и е с площ от 136 кв.м. Имотът има следното разпределение:
- коридор
- хол с кухненски бокс
- две непреходни спални
- две бани с тоалетни
- две тераси
- голяма изба 13кв.м.
Апартаментът се продава в степен на завършеност БДС:
- под циментова замазка
- стени гипсова мазилка
- тавани гипсова мазилка
- външна блиндирана врата
- дограма ПВЦ
- изградени до точка ОВ
- електрическа и ВИК инсталации
Изпълнението на сградата е по традиционен монолитен начин - със стоманобетонни колони, плочи и греди. Фасадните стени са трислойни - вътрешен слой от тухлена зидария, външен и среден. Фасадата е с характерен архитектурен образ. Сградата ще бъде завършена с луксозни общи части и хидравличен асансьор.
В близост до сградата има автобусна спирка и градски транспорт. Районът се характеризира още с наличие на детска градина, училище. В допълнение, за комфорт и развлечение на ваше разположение наблизо ще намерите ресторанти, супермаркети и др.
Можем да организираме оглед на имота в удобно за вас време. Свържете се с нас и кажете кога бихте искали да направите оглед. След огледа, имотът може да бъде резервиран със заплащане на депозит, след което се прекратяват огледи с други купувачи и започва подготовка на документите за сключване на предварителен и окончателен договор. Услугите, които предлага нашата фирма са - Безплатни юридически консултации, съдействие при одобрение на ипотечен, потребителски и всякакъв друг кредит, при възможно най-добри условия за клиента. Работим с всички банки. Безплатни огледи. За контакти: Димитър Ветин







