Глобъл Сървисиз продава тристаенапартамент в нова сграда в кв. Ктъстова вада.
Разположен в близост до метростанция Витоша, болница Вита, училище, детска градина, Южен парки др.
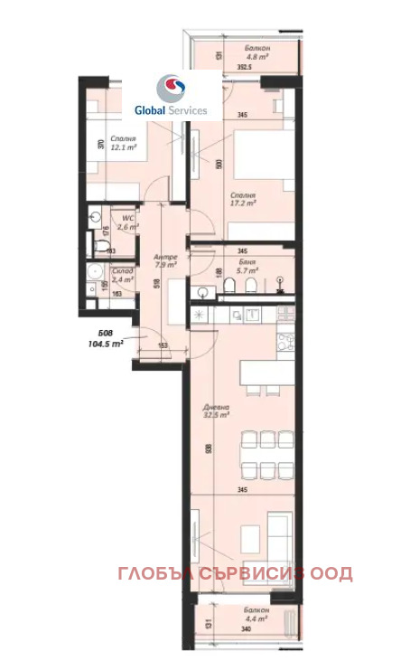
Апартамент Б11e със застроена площ -104.55 кв.м., площ със съответните ид.части от общите части на сградата -687.30 кв.м.
Разпределение:
анре - 8.8 кв.м.
2спални -12 кв.м.
дневна с кухненска част - 26.7кв.м.
баня и тоалентмна - 3.6кв.м.
склад - 2.5 кв.м
балкон - 6.1 кв.м
Изложение: запад/север.
Към имота могат да се закупят и парко места на цена 37000 евро.
За повече информация и огледи: 0878552625,оферта 15274







