✔Цена - директно от инвеститор! ✔Доказан строител с над 20 годишен опит в сферата✔ Гарантирана цена до Акт 16! ✔ Разсрочени схеми на плащане!
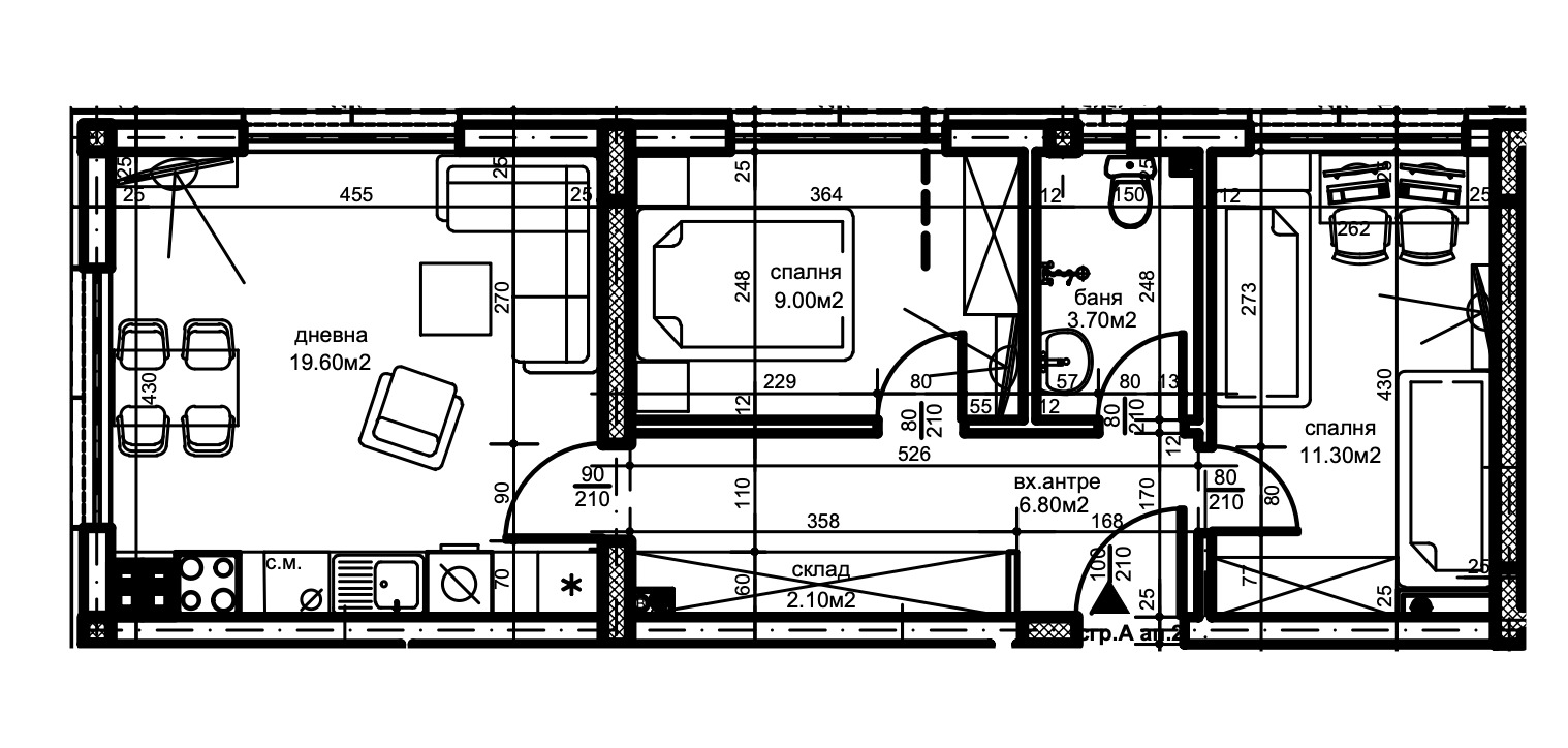
➡Апартаментът се състои от антре, баня с тоалетна, 2 спални, дневна и е с обща площ от 72,45 кв.м.
✔Локация: кв. Христо Смирненски
- На 280м от автобусна спирка
- На 850м от магазин Lidl
- На 750м от магазин JYSK
- На 750м от мебелен магазин Виденов
✔Строителство: Състои се от 2 самостоятелни жилищни сгради, всяка от тях с 5 жилищни етажа. Всяка от сградите разполага с асансьор. Пространството около сградите е решено с паркоместа и озеленяване. Предлагат се различни по-големина едностайни, двустайни и тристайни жилища.
✔Технически характеристики на сградите:
Конструкция: Монолитна, стоманобетонна;
Стени между съседни имоти - зид от керамични тухли с обща дебелина 25см;
Външна топлоизолация - 10см
PVС дограма
Входни врати: Блиндирани
Вътрешни стени и таван - гипсова мазилка, под - циментова замазка;
Асансьор: електрически, шумоизолиран;
Общи части: Напълно завършени по проект.
✔Паркиране: Възможност за закупуване на подземни и надземни паркоместа, както и подземни гаражи.
Реф. : 5490







