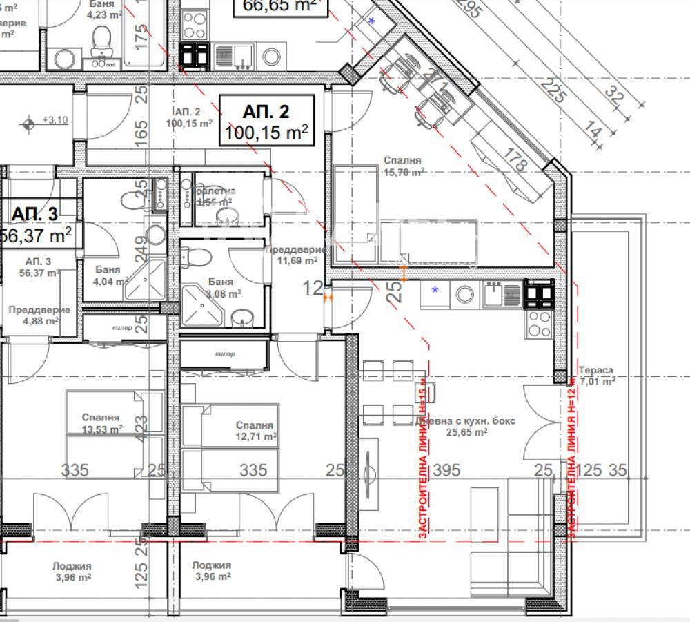
Тристаен апартамент със застроена площ от 100 кв.м. Разпределение: входно предверие, дневна с кухненски бокс 25,65 кв.м, две спални (15,70 кв.м и 12,70 кв.м), баня с тоалетна, тоалетна и две тераси.
Допълнително могат да бъдат закупени партерни гаражи (различни по размер).
Луксозна жилищна сграда разположена в кв. 'Овча купел 1'. Районът е с уредена инфраструктура и множество транспортни връзки. Разстоянието до метростанция 'Овча купел' е 600 м.
Малка жилищна сграда с един вход и пет жилищни етажа. На партерения етаж са разположени гаражи и магазини.
Изпълнението на строежа стартира през м. юли 2024 г. и ще бъде завършено в срок от 2 г.
Утвърден инвеститор и строител с 30 годишен опит и над 70 жилищни и административни сгради.
Обади се сега и цитирай този код 644107







