НОВ ЖИЛИЩЕН ПРОЕКТ ЗАД ХОТЕЛ ВЕГА!!!От агенция за недвижими имоти ' ПРИОРИТЕТ ' Ви представяме тристаен апартамент за продажба в един от най-предпочитаните райони за живеене!
Допълнително описание:
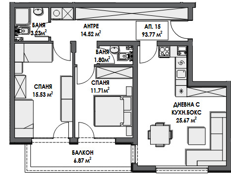
Апартаментът има следното разпределение: входно антре, всекидневна с кухненски бокс, две спални, две бани с тоалетна, балкон. Има възможност за закупуване на паркомясто или гараж. Сградата се намира в един от най-желаните райони - зад хотел ' Вега '. В непосредствена близост до спирки на градски транспорт, супермаркет Фантастико, заведения за хранене, метростанция в района. Разполагаме с едностайни, двустайни и тристайни апартаменти в сградата. Прикачените снимки към офертата са различни варианти на различни жилища в сградата.
ЗА ОГЛЕДИ И ПОВЕЧЕ ИНФОРМАЦИЯ - Аспарух Кодулев, тел: 089 407 00 20.
Ако съм зает и не Ви отговоря,моля позвънете пак или изпратете запитване по e-mail:[email protected]



