Предлагаме за продажба тристаен апартавент в новострояща се жилищна сграда на отлична локация в ж.к.'Банишора'.
Сградата се състои от сутерен и седем надземни етажа, на които има общо 6 самостоятелни обекта.
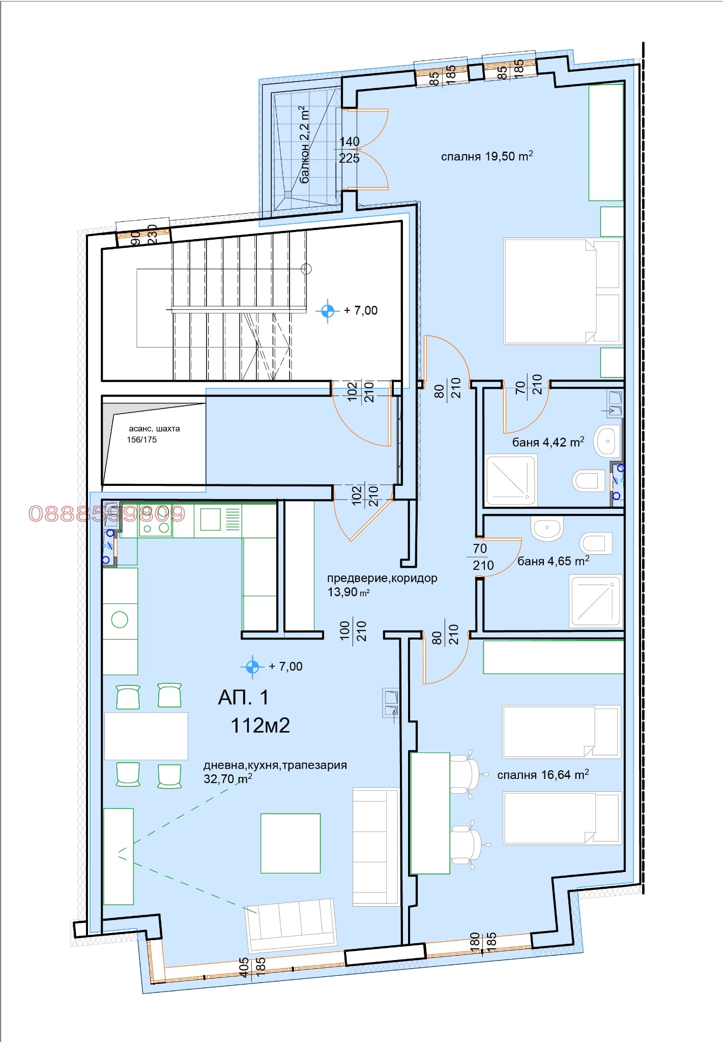
Апартаментът е разположен на втори етаж с прекрасно южно изложение.
Застроената площ е 112 кв.м и общи части 23,29 кв.м. Общата площ на апартамента е 135,29 кв.м.
Апартаментът разполага с две спални помещения и два санитарни възела.
Просторна дневна с кухненски тракт около 33 кв.м.
Към апартамента има прилежащо мазе в размер на 6,78 кв.м.
Има възможност за закупуване на паркомясто.
Строителството на сградата стартира през октомври 2024г. със срок на изпълнение края на 2026г.
Сградата ще бъде завършена с луксозни общи части и представително фоайе.
Фасадата ще е изпълнена в модерна комбинациия на алуминиев композит, структурна мазилка,дървесен декор и естествен камък.
Алуминиевата дограма е висок клас на белгийската фирма Reynaers.
Отоплението и климатизацията са предвидени с мултисплит система климатици.
Предимствата на Сливница 159 са изключително комуникативното място сигуряващо бърз достъп на живущите до всяка точка на столицата,зарядна станция на електромобил,паркиране на велосипеди.
Не се колебайте да се свържете за повече подробности и информация на посочения телефон или посетете сайта.
https://slivnitsa159.com/
email: [email protected]



