Новa Луксозна Сграда / Морска Панорама / Слънце / Простор / Различни Имоти / Гаражи и Парко Места / ГАРАНТИРАНО ФИКСИРАНА ЦЕНА БЕЗ ПРОМЯНА до Акт 16!
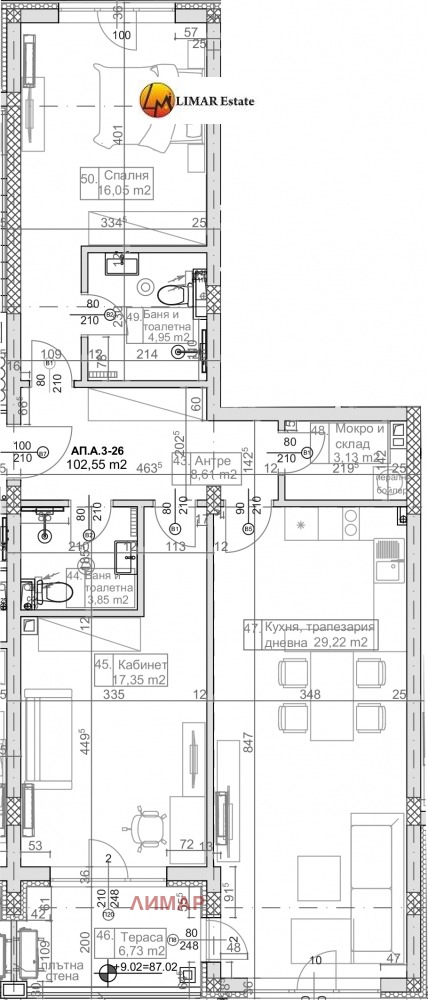
Тристаен панорамен апартамент състоящ се от - антре, две спални, кухня с трапезария,две бани-тоалет, мокро помещение, тераса. Към имота има и прелижаща маза !
Жилищна сграда град Варна новостроящ се жилищен комплекс от затворен тип срещу входа на к.к. Слънчев ден!!!
За повече информация: МАРИНА КОЛЕВА тел. 0897916612
В сградата се продават:
1-СТАЕН, 2-СТАЕН, 3-СТАЕН, 4-СТАЕН, МНОГОСТАЕН, МАГАЗИН, ресторант.
Комплекса разполага с големи зелени площи (двор), подходящи за спортни занимания, отдих и барбекю. На 300 м. от главния път. С гледка към морето...
Цени от 80000 евро до 200000 Евро ! Паркоместа на цена 10000 Евро и Гаражи от 15000 до 20000 Евро !!!
Разсрочено плащане !
Едно ново предизвикателство, една нова концепция, удоволствието да намериш имот, който да превърнеш в прекрасен и уютен дом. Модена жилищна сграда стратегически разположена на изключително ключова локация ясно подчертана от силно развитите комуникации на района.
64 апартамента, разположени в две сгради;
Голяма градина от 4 дка;
Зелени площи, детски кътове, зона за отдих;
Модерна архитектура с функционално разпределени помещения.
Удобна локация, с бърз и лесен достъп до всяка точка.
АКТ 16 2027 г.
Виж всички обяви в limarre_imoti.bazar.bg или тук







