Представяме Ви ТРИСТАЕН апартамент в един от най-предпочитаните райони на Варна кв. Левски. Жилището е разположено на висок среден етаж в нова, модерна сграда от доказан строител с над 20 години опит в бранша.
Характеристики на имота:
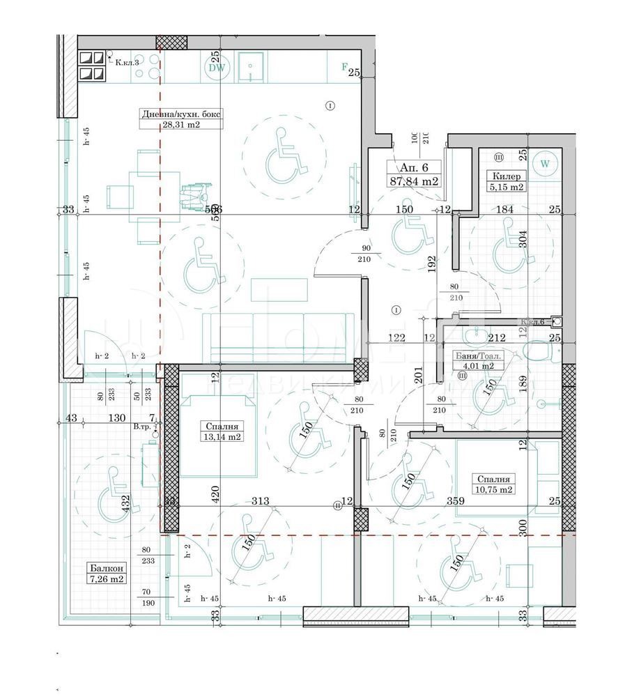
Площ: (102м2)
Разпределение:
Просторен дневен тракт с кухненска част
Две комфортни спални
Тераса с приятна гледка
Входно антре
Баня с тоалетна
Предимства на имота:
Южно изложение естествена светлина през целия ден
Среден етаж топъл и енергийно ефективен
Качествено строителство от утвърдена фирма
Модерна сграда с асансьор и контрол на достъпа
Локация:
Апартаментът се намира на изключително комуникативно място, в близост до:
Основно училище Черноризец Храбър
Хранителен магазин Лидл
Две болници
Детска градина
Спортен комплекс
Озеленени пространства и удобен градски транспорт
Перфектен избор за семейно жилище или инвестиция!
За повече информация и оглед: Обява 100080
Виж всички обяви в home2uvarna.bazar.bg или тук







