Агенция за недвижими имоти ХОУМ ФОР Ю има голямото удоволствие да ви представи за продажба тристаен апартамент 5 вх.'А' в новострояща се, луксозна сграда в кв. Освобождение, гр. Благоевград.
Сградата се състои от: модерен безшумен асансьор, сутерен с гаражи и мазета, партерен етаж с гаражи и апартаменти и четири жилищни етажа.
Вашият нов ДОМ се намира на КОТА + 2.80 на първи жилищен етаж с юго-западно изложение, което го прави много слънчев, светъл, топъл и уютен!
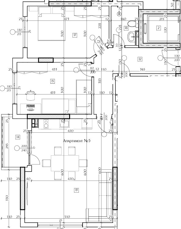
Застроената му площ е 88,40 кв.м. + 13,26 кв.м. общи части, което се равнява на 101,66 кв.м. обща площ, ведно с мазе 5 с площ 3,20 кв.м.
Със следното вътрешно разпределение на стаите и тяхната полезна (светла) площ:
- входно антре с площ 9,45 кв.м.
- дневна с кухненски бокс и трапезария с площ 29,38 кв.м.
- балкон с площ 4,20 кв.м.
- спалня с площ 12,99 кв.м.
- тоалетна с площ 2,73 кв.м.
- спалня с площ 13,78 кв.м.
- баня с тоалетна с площ 3,65 кв.м.
Жилището ще бъде завършено по БДС и ще се предаде в следния завършен вид:
тухли Wienerberger Porotherm 25 light
- ПВЦ дограма 6 камерна с високоенергиен двоен стъклопакет с К-а стъкло за запазване на температурата в помещенията и 4 сезона.
- топлоизолационна система MAPEI EPS (експандиpан полистирен) 10 см. и полимерна мазилка
- общи части с гранит и иноксови парапети
- стени и тавани: фина гипсова мазилка на 'MAPEI'
- изводи за климатици във всяка стая
- стъклени парапети на терасите
- блиндирана входна врата
- под: циментова замаска
- ел. до точка
- ВиК до тапа
За ваша сигурност, спокойствие и удобство за новия Ви ДОМ, предлагаме да закупите гараж на цена от 600 на кв.м., за да не се налага всеки ден да обикаляте и да търсите място на което да паркирате автомобила си.
ГЪВКАВА СХЕМА НА ПЛАЩАНЕ:
- 30 % - ПЪРВОНАЧАЛНА ВНОСКА
- 10 % - на КОТА +/- 0.00
- 10 % - на КОТА + 2.80
- 10 % - на КОТА + 5.60
- 10 % - на КОТА + 8.40
- 10 % - на КОТА + 11.20
- 10 % на АКТ 15
- 10 % на АКТ 16
ЕТАП НА СТРОИТЕЛСТВОТО: В СТРОЕЖ!!!
АКТ 14 - до края на 2025г. (това е документът за приемане на конструкцията на сградата, който се издава, когато сградата достигне етап груб строеж)
АКТ 15 (това е документът, с който се констатира, че сградата е напълно завършена)
АКТ 16 - до края на 2026г. (това е документа, с който сградата се въвежда в експлоатация или по просто казано годна за живеене )
Жилището очаква своите нови собственици, които ще го стопанисват и превърнат в техен дом!
За да получите повече информация за предлаганата от нас оферта може да ни се обадете на посочените телефони за връзка!
Екипът от професионалисти на ХОУМ ФОР Ю ще Ви помогне да сбъднете мечтите си и да ги превърне в реалност, като ви съдейства НАПЪЛНО БЕЗПЛАТНО при кандидатстването за жилищен кредит с ПРЕФЕРЕНЦИАЛНИ УСЛОВИЯ от най-големия кредитен консултант в България КРЕДИТ ЦЕНТЪР!
Ако предлаганият апартамент ви е харесал и представлява интерес за вас, не се колебайте да се свържете с наш брокер, за да резервирате час за оглед в удобно за вас време!
Заповядайте в нашият офис на бул. Кирил и Методий 29 Б за безплатна консултация с нашите професионалисти, които ще ви обърнат специално внимание, като ви запознаят с пазара на недвижими имоти и ви помогнат с избора на ново жилище според вашите изисквания!
Новият Ви ДОМ е точно тук!
Защото с нас мечтите стават реалност!
РЕФЕРЕНТЕН 6520
Виж всички обяви в home4u-bg.bazar.bg или тук







